建筑设计:格里特·里特维尔德
项目时间:1924年
项目地点:荷兰乌德勒支
作为著名的“风格派”运动(De Stijl)在建筑领域唯一建成的作品,施罗德住宅是现代建筑史上一座具有标志性意义的建筑。或许以时间顺序证明其历史地位并不恰当,但施罗德住宅的完成比我们熟知的萨伏伊别墅要早了4年。
△ 建筑师里特维尔德与施罗德住宅模型
风格派旗手之一的杜伊斯堡认为,建筑应该忠实地表达它们所限定的空间,而不是一件披在许多房间外面的花哨外套,这样的理念在施罗德住宅中被清晰地体现出来。
△ 施罗德住宅概念图
施罗德住宅坐落在街道的尽端与隔壁的砖制住宅相邻,另一侧是当时的防御线。
△ 施罗德住宅
初看这座建筑,从外观上人们很难发现这座现代建筑的里程碑实际上是一座木结构的房子。起初里特维尔德打算用混凝土来建造,但是高昂的造价使他放弃了这个想法。取而代之以更省钱的方法:基础与阳台用混凝土建造,隔墙则是一般的抹灰砖墙,整个建筑的门窗框与楼板都是木制由木梁承托,钢架与金属网被用来更好地承重。
△ 施罗德住宅
立面的设计忠实于风格派的绘画,每一个构件都有它们自己的位置、形状及颜色。颜色被用来区分立面系统:白色在最外层,灰色表示阴影,黑色的门窗框以及一系列色彩明丽的线性构件。
△ 施罗德住宅立面
△ 立面细节
这些构件、体块从室外到室内尽可能保持一致,颜色区别不大,增强了室内外空间的连通。窗户的内置铰链使得其可以与墙体呈90度打开。在一定程度上保证了立面上的“风格派”。在二楼的一个角落有一个特别的角窗,这扇窗户开启后房间的一个角落完全对外开敞。
△ 二层“消失的角落”
在二楼,取代固定隔墙的是一套划动隔墙系统。施罗德夫人提出希望可以在空间上有更多的灵活性来满足她和三个孩子的生活。随着隔墙系统的分隔,每个人都有了自己的房间。当孩子们不在的时候,将隔墙全部打开,又是另一番空间体验。
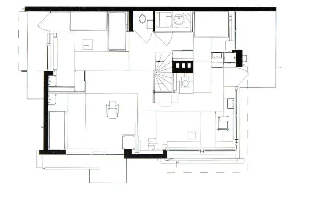
△ 施罗德住宅底层平面图
△ 施罗德住宅二层平面图
△ 施罗德住宅底层与二层轴测图
△ 施罗德住宅空间组成分析
△ 施罗德住宅室内概念图
△ 施罗德住宅底层室内
△ 施罗德住宅底层厨房
△ 施罗德住宅底层室内
△ 施罗德住宅二层室内
室内的家具也完全是里特维尔德签名式的设计:红、黄、蓝色彩的运用以及构成式的家具设计。
△ 椅子
△ 桌子
△
版权声明:我们致力于保护作者版权,注重分享,被刊用文章【施罗德住宅案例分析(现代建筑的50个经典04)】因无法核实真实出处,未能及时与作者取得联系,或有版权异议的,请联系管理员,我们会立即处理! 部分文章是来自自研大数据AI进行生成,内容摘自(百度百科,百度知道,头条百科,中国民法典,刑法,牛津词典,新华词典,汉语词典,国家院校,科普平台)等数据,内容仅供学习参考,不准确地方联系删除处理!;
工作时间:8:00-18:00
客服电话
电子邮件
beimuxi@protonmail.com
扫码二维码
获取最新动态
