今日份复古风美梦,全被她家承包了!
若说哪种风格不会过时,那么复古风必须拥有姓名。毕竟「时尚是个轮回」,在家装界也不例外,复古风的装修总能给人一种优雅精致的感觉,美得让人难以拒绝!
本期要为大家分享的,就是一套很有代表性的复古风装修案例。坐标安徽芜湖,屋主是三口之家,夫妻俩都比较怀旧,于是便决定把家装成复古风。下面,就让我们一起参观下屋主的新家吧!
▲装修实拍图
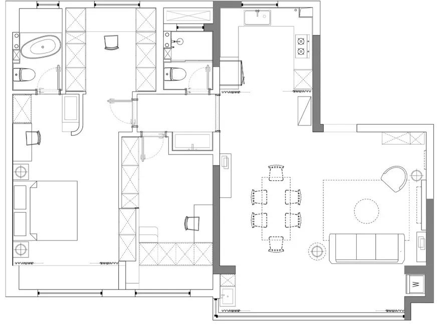
//户型分析//
①整屋面积约128㎡,原户型是三居室的,格局不算方正。
②房子是南北朝向,其中客厅和两间卧室朝南,采光还不错。
③厨房的面积比较小,很难布置常规尺寸的橱柜。
▲户型平面图
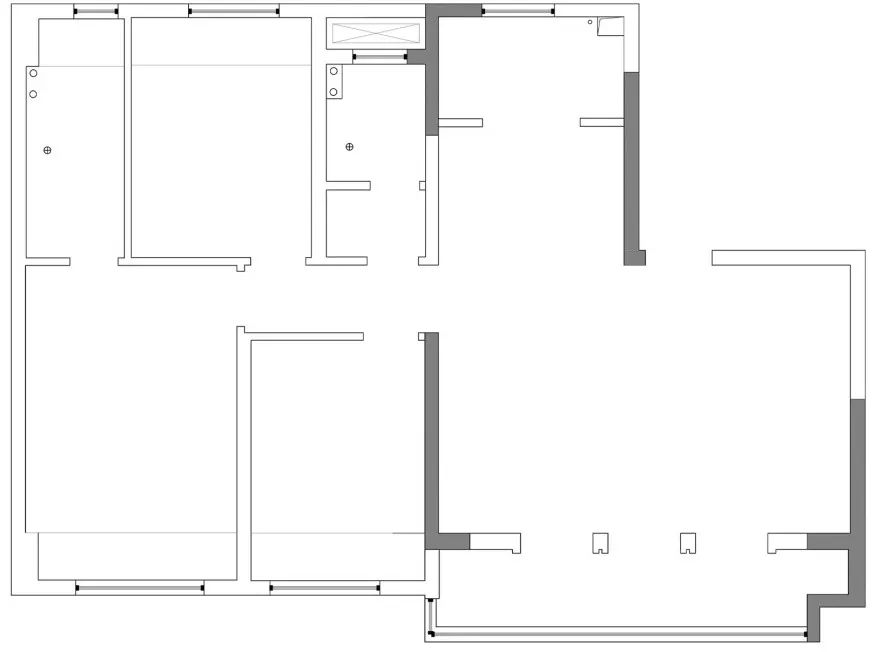
//设计亮点//
①打通阳台和客厅,以扩充公共区域的空间感和使用面积。
②把厨房和生活阳台合并,做开放式U型厨房布局,动线流畅、空间充裕。
③保留两间南向卧室,把北向的小卧室改为衣帽间,并纳入主卧内。
▲装修平面图
在整屋空间调性上,设计师以浅咖色为基调,搭配胡桃木、墨绿色等深色家具,营造出典雅又精致的家居氛围,高级感不言而喻。
▲装修实拍图
客厅
和大部分家庭不同的是,屋主家取消了电视机的设置,减少了不必要的空间浪费。
沙发不靠墙,和茶几共同组成了围合式布局,可以更好地把一家人凝聚在一起。
屋主夫妻平时工作比较忙,他们希望回家后只要有时间,就多陪陪孩子读绘本、玩积木,减少电子产品对彼此的消耗。
▲客厅实拍图
客厅和阳台打通以后,不仅延伸了客厅的空间感,也提升了公共区域的采光。
阳台的大落地窗,很好地将户外自然光引入屋内;法式轻幔窗帘,让阳光都变得柔和了,照在身上温暖又舒服。
▲客厅实拍图
考虑到室内层高有限,屋主家并没有做常规的大吊顶,而是走了一圈经典的法式雕花石膏线,让人宛若置身华丽的欧式宫廷之中。
古铜框壁画、法式流苏落地灯、经典多头水晶吊灯、黑色壁炉等软装,尽显复古风的优雅与浪漫,细节之处尽显美感与用心。
▲客厅实拍图
女主在客厅的一角,摆放了一面胡桃木展示柜,用来摆放她收藏的手办和手工艺品,不仅为生活增添了一份仪式感,也成为了家里一处独具魅力的风景线。
▲客厅实拍图
餐厅
餐厅在复古的基调之上,又增加了一些田园元素,蕾丝桌布、鲜花与绿植,让整体空间多了一份灵动与清新的气息。
两盏水晶吊灯,悬挂在餐厅的中间,进一步强化了装修的精致感,也为用餐增添了浪漫的氛围。
▲餐厅实拍图
餐桌和餐椅都是中古风的款式,尺寸比常规的款式要大一些,可以容纳6-8人同时用餐。
偶逢节假日,屋主夫妻也会邀请父母、亲友来家聚餐,共度愉快的假期时光。
▲餐厅实拍图
浅咖色的乳胶漆墙面,搭配细腿胡桃木餐边柜,点缀绿植与壁画,让文雅温润的气质里又透出一丝时尚感。
▲餐厅实拍图
男主特意从老家带过来了龟背竹和柠檬树,并把它们布置在家里的各个角落,植物们被屋主二人养护得很好,就连空气里都飘散着淡淡清香。
▲餐厅实拍图
厨房
为了提升厨房的使用空间,设计师把生活阳台纳入了厨房,并做了U型开放式布局。
厨房和餐厅之间,用法式窗帘做隔断,炒菜时拉上能够阻挡油烟飘入客餐厅。
墙面的白色方砖搭配地面的碎花小砖,辅以绿色和白色的橱柜,整个厨房显得温暖明媚,光是看着就觉得心情舒畅!
▲厨房实拍图
主卧
原主卧的空间不算太大,直接布置家具,可能还会显得比较拥挤。
为了提升主卧的空间感,设计师把北向的卧室和主卧合并,组成一个大套间,以实现卧室、衣帽间、办公区和卫浴间等多种功能。
▲主卧实拍图
床头背景墙用白色竖纹木饰板做造型,一侧点缀复古风壁灯,营造出静谧温馨的休憩氛围。
窗帘采用了双层设计,靠窗的部分安装了木质百叶帘,契合整屋复古的装修风格;飘窗外侧安装了白纱帘,质感轻盈通透。
▲主卧实拍图
衣帽间定制了两组顶天立地的大衣柜,搭配银色把手,美观又实用。
设计师在飘窗的上方,增设了三组抽屉,用来收纳女主的首饰,其台面空间也能当梳妆台来使用。
▲衣帽间实拍图
主卫的洗手台做了外移处理,上方增设了别出心裁的小木窗,质感十足。
内部的卫浴间,靠窗安排了女主心心念念的浴缸,晚上可以一边泡澡一边仰望星空,也太舒服了吧!
▲卫浴间实拍图
次卧
次卧是给孩子准备的房间,室内融入了蓝色、紫色等活泼的色彩,背景墙用童话墙纸做装饰,为小朋友打造出一个充满童真的成长空间。
儿童房的飘窗被设计师拆除了,改造成榻榻米床,侧面做三阶楼梯,内部有充足的储物空间,实用性很强。
▲次卧实拍图
床头墙面上规划了拱形壁龛,并安装一盏圆球壁灯,为孩子夜晚一个人睡觉带来了满满的安全感。
▲次卧实拍图
【本期总结】
回顾本案,整屋设计既精致高级,又充满了个性。设计师根据屋主一家人的生活需求,通过巧妙的规划,让理想照进现实,值得学习!如果你也喜欢本期内容,欢迎点赞收藏!
想了解更多精彩内容,快来关注甜茶的极简生活
版权声明:我们致力于保护作者版权,注重分享,被刊用文章【住宅家装案例(安徽夫妻的128)】因无法核实真实出处,未能及时与作者取得联系,或有版权异议的,请联系管理员,我们会立即处理! 部分文章是来自自研大数据AI进行生成,内容摘自(百度百科,百度知道,头条百科,中国民法典,刑法,牛津词典,新华词典,汉语词典,国家院校,科普平台)等数据,内容仅供学习参考,不准确地方联系删除处理!;
工作时间:8:00-18:00
客服电话
电子邮件
beimuxi@protonmail.com
扫码二维码
获取最新动态
