老房改造,犹如脱胎换骨一般,看着房子换上崭新的居家样貌,是件非常有成就感的事情。有时候变化太大,也会让人产生疑问,这是一个家吗?那老房改造前后差距有多大呢?看看接下来的这套老房改造案例,前后差距简直太真实了。
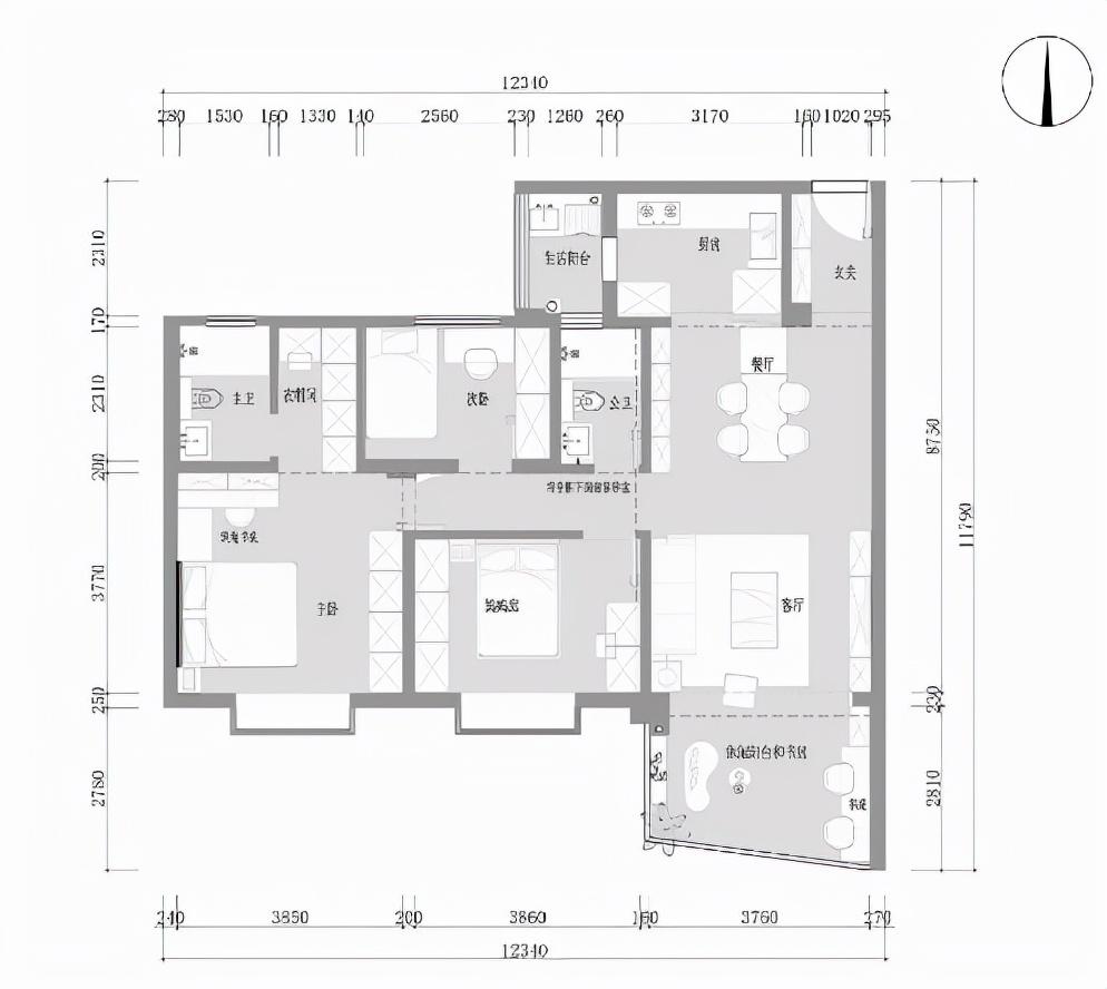
使用面积107㎡,三房一厅一厨两卫两阳台布局;
整体动线设计不够合理,比如客厅无法进入厨房,同时也导致玄关缺乏收纳空间;
客厅、阳台和厨房,由于门和墙的隔断影响,视觉上会显得很局促;
此外客厅、阳台和厨房,都有门和墙隔断,视觉上较为局促;
最后是主卧,空间比较宽松,有效地做好空间分隔很有必要。
针对户型存在的问题,做出了以下设计改造:
首先,调整了厨房门洞位置,改由客厅进入,不仅动线更流畅,也为玄关争取了收纳空间。
其次,拆除原有阳台推拉门,将客厅和阳台二者空间合并,让空间更显通透开阔。
最后,改动了主卧和次卧门的位置,压缩过道从而为主卧增添一些空间。
改造前,只是做了简单基础的装修,大白墙搭配地砖。墙面也留下了岁月的痕迹,有些地方也开始脱落了。隔墙加上推拉门的影响,空间略有些局促。
改造前的卫生间,功能上没有什么问题,但没做干湿分离,还是很不方便的。
改造前的次卧,整个空间也比较拘谨,简单的家具摆放,就剩下过道空间了,收纳也欠佳。
改造前的主卧,空间还是蛮宽松的,只是装修陈旧了一些。
改造前的厨房,装修老气过时,加上隔断的影响,空间显得局促很多。
接下来就要进入正题了,看看改造后的整体效果吧。
改造后的客厅,阳台的纳入使得空间开阔不少,加上大面积使用白色,整体敞亮很多。沙发背景墙采用蓝色,不仅起到点缀作用,也让黑白灰为主的现代风格多了一丝温馨。电视柜采用悬空设计,视觉效果轻盈也方便扫地机器人工作。
原本的阳台,改造后变成了工作区,日常办公、撸猫两不误。阳台做了封闭处理,大面积玻璃窗设计,不仅提供了更充足的采光,还有窗外的景致。
餐厅简单实用,颜色集中在黑白灰三色,极简线条让空间显得干净利落。超大餐边柜设计,为餐厅提供了足够的收纳空间。餐边柜采用上中下三层设计,中间开放式设计,方便摆放常用物件和小电器。
厨房黑白色定调,简约耐脏好清洁。厨房用具尽量收纳上墙,实现台面空无一物,日常好清洁,看着也不凌乱。冰箱紧挨着水槽摆放,实现最短动线。高低操作台设计,更符合人体工程学,让厨房使用更轻松。
厨房和生活阳台相连,一体化设计空间更整洁统一。
主卧延续了沙发背景墙的用色,利用蓝色与白色的碰撞,营造出一种温馨静谧的氛围,有助于改善睡眠。床尾部空间,设计了一整排的衣柜,无明装门把手设计,整洁美观。
调整了主卧门的位置,提高了卧室使用面积,也让过道空间不那么浪费。带有独立卫生间的主卧,利用进入卫生间的过道尽头,设置了梳妆台。
改造后的次卧,调整了门洞位置,改到距离客厅比较近的一侧。两面墙都做了储物柜,一面是衣柜,一面是带梳妆功能的储物柜。小空间大利用,相比之前要实用很多。
儿童房仅做了基础装修,家具软装什么的暂未布置,为后期提供了更弹性可变的空间。
卫生间灰色为主,白色洁具的点缀,空间不至于太过单调。做了干湿分离设计,方便日常使用。
以上就是此次老房改造案例,有对比才有伤害,前后差距还是相当真实的。不仅格局变得开阔,空间利用率和收纳也得到了提升,算是比较成功的一次改造。
版权声明:我们致力于保护作者版权,注重分享,被刊用文章【老房子改造装修案例(老房改造前后差距有多大)】因无法核实真实出处,未能及时与作者取得联系,或有版权异议的,请联系管理员,我们会立即处理! 部分文章是来自自研大数据AI进行生成,内容摘自(百度百科,百度知道,头条百科,中国民法典,刑法,牛津词典,新华词典,汉语词典,国家院校,科普平台)等数据,内容仅供学习参考,不准确地方联系删除处理!;
工作时间:8:00-18:00
客服电话
电子邮件
beimuxi@protonmail.com
扫码二维码
获取最新动态
