▲ 点击“火柴设计联盟”,关注设计互动平台 每天更新,喜欢的可以点赞关注转发哦!
滑到文章底部获取免费资料
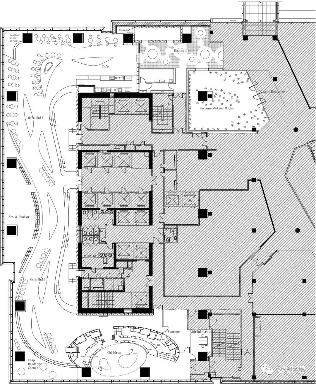
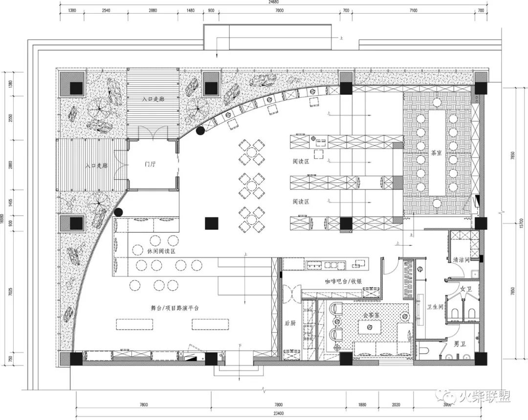
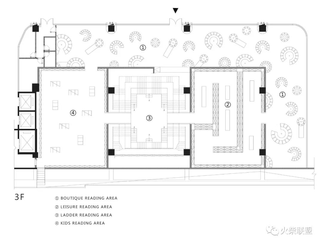
《设计师参考案例灵感图集》┆『最新书店书吧案例合集』高清官方摄影图片24套┃包含CAD施工图、效果图,设计方案(部分),软装方案(部分)┃2.36G〖火柴设计联盟〗第2164期
此合集内容为书店书吧案例合集24套
收纳了全网所有优质设计作品中的
书店书吧设计案例
制作了一份书店主题专项的图集
包含施工图,高清效果图,设计说明等
Wutopia Lab 俞挺-苏州钟书阁丨JPG平面+官方摄影丨64P丨49M丨
Wutopia Lab 俞挺-西安钟书阁丨JPG平面+官方摄影丨31P丨16M丨
风合睦晨-保定新华书店丨JPG平面+官方摄影丨24P丨13M
筑蹊生活主题书店丨JPG平面+官方摄影丨28P丨20M丨
直向建筑设计 董功-Page One北京坊书店丨3050㎡丨JPG平面+官方摄影丨28P丨14M丨
唯想国际 李想-重庆钟书阁丨121㎡丨JPG平面+高清官方摄影丨18P丨55M丨
山水秀建筑事务所-上海格楼书屋丨JPG平面+官方摄影丨22P丨16M
【免费获取方式】
关注转发加评论后私信“2164” 即可获取此套完整版资料
免责声明:
以上图片及资料内容来源于网络,由我方整理,版权归原作者及其公司所有;
本资料仅供学习研究之用,不得用作于商业用途,若此图库侵犯到您的权益,请与我们联系删除;
本文章版权归本头条号所有,未经同意不得随意转载 ,若恶意侵权将追究其法律责任
版权声明:我们致力于保护作者版权,注重分享,被刊用文章【书店设计案例(设计师参考案例灵感图集)】因无法核实真实出处,未能及时与作者取得联系,或有版权异议的,请联系管理员,我们会立即处理! 部分文章是来自自研大数据AI进行生成,内容摘自(百度百科,百度知道,头条百科,中国民法典,刑法,牛津词典,新华词典,汉语词典,国家院校,科普平台)等数据,内容仅供学习参考,不准确地方联系删除处理!;
工作时间:8:00-18:00
客服电话
电子邮件
beimuxi@protonmail.com
扫码二维码
获取最新动态
