项目名称:创新型装配式产业厂房
项目地点:坪山区北部,坪山金沙社区与沙田社区之间
开发单位:深圳市坪山区产业投资服务有限公司
工程总承包单位:中建科技集团有限公司
1、项目概况: 新能源汽车产业园项目位于深圳市坪山区,总用地面积约3.3万㎡,总建筑面积约25.6万㎡。地上建筑3栋,建筑高度90-100米,该项目是深圳坪山区最大的服务于汽车产业的工业园区,建成后可提供10万的厂房面积。项目于2020年10月18日开工,目前楼体已于2022年2月30日封顶。
工业上楼之-摩天工厂-鸟瞰图展示
工业上楼之-摩天工厂-人视图展示1
工业上楼之-摩天工厂-人视图展示2
2、项目装配式技术应用情况
本项目3栋楼采用钢管砼柱框架剪力墙结构体系,钢管砼柱框架剪力墙结构体系框架柱采用钢管混凝土,核心筒和剪力墙采用现浇钢筋混凝土,框架梁采用钢梁,塔楼标准层楼板采用装配整体式。新能源一期装配率按国标算1栋76.2%、2栋75.3%、3栋75.6%;按广东省标算装配率1栋81.7%、2栋80.8%、3栋81.1%。
预制构件种类由钢管混凝土柱、钢梁、预制外墙、预应力空心板、预应力带肋叠合板、预制楼梯、ALC条板等构成。
工业上楼之-摩天工厂-构件种类
结构体系优势:从设计角度,柱网模数化设计、核心筒、卫生间、楼梯标准化设计,预制外墙采用鱼鳞式外墙设计隐藏竖向通缝,楼板采用预应力空心板实现大跨度空间利用;从生产角度,工业化程度高,成熟的自动化、机械化生产工艺,构件质量好,生产效率高;从施工角度,施工简易,施工速度快,实现了绿色免外架高支撑高支模,降低人力成本。
设计亮点:
平面设计符合标准化、模数化、模块化、可以灵活组合、一个平面布局多个组合方式,达到不同企业的多种生产空间需求。
1、模数化设计:以基本的8.4米为基础单元模数、延伸扩展到10.8米、12米。通过模数化轴网地下空间停车的效率最大化、地上建筑的标准化。
项目轴网模数化示意图
厂房轴网模数化示意图
2、模块化设计:以模数化的轴网为基础延伸出模块化的楼梯间、核心筒、卫生间等等减少设计种类、发挥装配式建筑的优势。通过模块化设计理念延伸出弹性生产空间,以900㎡为单元模块,可以组成900、1800、2700 、5400等多种生产空间、满足不同企业的不同需求。
模块化示意图
弹性生产空间示意图
3、PC立面模块化
本项目动感流线的竖线条表皮,形成建筑内外双层丰富建筑空间,通过横竖比例节奏的控制,经典简约的表皮加强了地标建筑的昭示性;塔楼竖向线条在裙房部分的延伸,充满了现代工业感的流动线条,保持了立面的完整性和统一性。为完美呈现立面之美,我们采用了标注化、模块化的PC立面设计:一个PC立面构架大小为2.7米*4.2米,采用鱼鳞式搭接方式(有利于防水)
外墙PC构件示意1
外墙PC构件示意2
4、预制与现浇相结合的结构设计
本项目区建筑高度分别为1栋92.35m、2栋86.1m、3A栋91.7m、3B栋87.2m。1栋和2栋结构采用钢混组合框筒结构,3A栋和3B栋结构采用钢混组合框剪结构。
1-3栋均有的预制构件种类有钢梁、钢管混凝土柱、预制外墙、预制预应力空心板、预制楼梯、预制ALC条板,1栋还有预制预应力带肋叠合板、3栋还有预制阳台。
构件BIM拆分图-办公
构件BIM拆分图-宿舍
构件BIM拆分图-厂房
6、本项目为采用预制空心板的国内最高建筑,
空心板的连接节点为中建科技集团有限公司自主研发的创新性节点连接形式。利用桁架筋进行顺空心板方向之间的连接,利用钢筋网片和拉通钢筋增加空心板之间的整体性,利用空心板上的现浇层加强防水并增加结构整体性。
钢梁两端有空心板连接大样
空心板连接
空心板连接
7、本项目外围护采用预制混凝土外挂墙板,此构件具有保温隔热效果好、重量大的特点,结构设计过程中考虑了预制外挂墙板对于结构的荷载,为了减少外挂墙板对结构整体的影响,构件采用上挂下滑的节点形式,上部采用预留钢筋锚固到现浇楼板段的形式,下部采用预埋件进行滑移连接。
PC板节点
8、1#楼宿舍区标准层和3#楼标准层部分楼板采用中建科技集团自主研发的预制预应力带肋叠合板,相比于普通叠合板承载力更高,经济性好,连接节点位置利用桁架筋增加整体性,板与板之间采用密拼连接。
中间支座板端节点
板拼接示意图
预制板与现浇板拼接示意图
8、全装修技术应用
项目宿舍户型多样,有单房、一房,大致比例为9:1。通过客群分析,研究深圳市民的居住习惯和需求,对收纳、厨卫等空间展开精细化设计。全面采用装配式装修,并大量使用健康建材,让居民更有高品质的获得感。
9、信息化技术应用
。本项目通过各专业各阶段BIM模型结合中国建筑智慧建造平台集成的信息化创新技术,以轻量化的建筑信息模型为载体,构建数字设计、商务招采、生产制造、施工安装以及智慧运维全过程数据链,提升EPC管理水平,提升项目建设品质。
(1)本项目的所有参与方通过BIM应用提升专业服务水平,提升项目的建设品质。
(2)通过同一BIM模型,统一信息传递标准,形成标准化模式,基于统一管理平台实现项目信息的集成管理。
(3)通过BIM为项目节省建造成本,减少资源浪费,实现绿色施工。
(4)本项目的BIM模型能够为后期运营维护的信息化、数字化管理建立良好的数据基础。
(5)增强EPC项目团队协同管理能力,提升工作效率和项目质量,实现精益、智能建造。
BIM模型-土建
BIM模型-机电
10、BIM施工模拟
初步设计阶段各专业BIM模型深度已达到LOD300,可更全面进行施工阶段的实施方案模拟,包括预制构件吊装模拟、塔吊吊装模拟、机电设备安装模拟等。
BIM空心板安装模拟
外墙安装模拟
预制阳台安装模拟
叠合板安装模拟
10、施工创新使用十大新技术
塔楼采用全装配式钢混组合结构+全装配式PC外墙围护结构,可以做到免外架施工,降低了使用附着式升降脚手架或悬挑脚手架所带的高额施工成本,使用自主研发的主体施工安全防护系统,解决外架施工带来的安全防护体系的问题,本防护体系可定型化、可标准化、可拆卸,可周转重复使用,成本低,使用方便,同时为现场工人施工带来便利。
高大模板支撑体系采用盘扣架+铝合金格栅+塑料模板体系,相较于传统模板架体,用钢量节约40%以上,铝合金格栅周转使用次数可达30次以上,远远大于普通模板体系钢管木方4-6次周转,符合国家“绿色环保,节约资源” 的可持续发展理念。
高大模板支撑体系实物图
高大模板支撑体系实物图
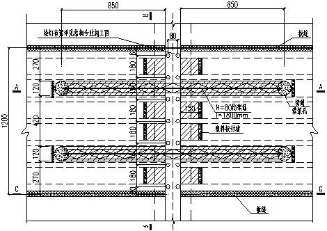
塔楼主体结构层高高、跨度大、荷载重,最大跨度达12米,厂房设计荷载:首三层为25KN/m2,标准层为6.5KN/m2,结构高度达百米,最大跨度为8.4m,采用265mm预应力空心板+60mm叠合层形式楼板,可以达到免模板、免支撑,且安装简便,产品质量高、承载力高、刚度大、可大跨布置、减少梁柱、降低自重,大大缩短工期,3~18米可任意切割。经过性能试验,预应力空心板施加设计荷载后依然安全可靠,且无明显挠度裂缝,可作为我国传统楼板的换代产品。预应力空心楼板被建设部列为重大科学技术推广产品,可用作各类公共建筑、住宅建筑、工业建筑的楼板,本项目为国内首个应用预应力空心板的百米高层项目。
预应力空心板性能试验图片
预应力空心板性能试验图片
预应力空心板钢梁侧现浇板带采用自主研发的吊模技术,相较于传统传统满堂架搭设,提高了模板安装效率,节省了工期,同时提升现场施工形象,有利于预应力空心板推广应用。
另外吊模支撑体系在钢梁吊装前即可安装,减少了高处作业,降低了安全风险。
空心楼板现浇板带的吊模支撑体系实物图
空心楼板现浇板带的吊模支撑体系实物图
该项目楼标准层采用参数化设计的全装配式PC外墙围护结构。
1、2栋鱼鳞式PC外墙采用临时固定方式为斜拉杆和底部楼板预埋件连接,实现办公区宿合区建筑外立面无缝搭接的效果,3栋采用超大尺寸PC外墙,长4180mm,高4530mm,带有两个铝窗窗框,临时固定方式为顶部连接件焊接钢梁和底部楼板预埋件连接。在施工中,预埋件安装合格率的问题得到有效解决,相关技术已经整理为成果发表。
PC外墙实物图
PC外墙实物图
1#楼宿舍区标准层和3#楼标准层部分楼板采用倒双T式预应力叠合板,相比于普通叠合板承载力更高,在跨度4.2m以下,无需搭设临时支撑,安装效率更高,施工更加简便,与上部现浇叠合层混凝土的结合程度更高,抗震性能和整体性能更加优异。
预应力叠合板实物图
预应力叠合板实物图
3#B楼外围护结构均采用预制阳台,预制阳台在工厂通过定型化模具进行批量化生产,运输至施工现场经吊装、矫正定位后,将预埋钢板与钢梁进行焊接,焊接固定完成后便可脱钩,并且无需搭设临时支撑,然后将预留钢筋与楼板钢筋进行搭接,与楼板混凝土整体浇筑,施工效率高,工期短。
预制阳台实物图
预制阳台安装完成图
预制阳台实物图
预制阳台安装完成图
3栋塔楼均有使用预制楼梯,预制楼梯的安装效率高、施工速度快、拼装灵活,成型质量和观感显著提升。
预制楼梯实物图
预制楼梯实物图
标准层内墙采用蒸压轻质混凝土板(ALC条板),根据层高变化选用合适长度的ALC条板,不需抹灰,可直接在砌体上刮腻子,进行装饰面层施工,具有施工速度快、砌体平整度好、节约空间等优势,且在施工时无湿作业,环保性能好。
ALC条板实物图
该项目基于EPC总承包的管理理念,运用BIM信息化技术对项目的设计、生产、施工及运维进行统筹管理,BIM设计阶段应用分为设计建模、碰撞检查、工程量统计、预制构件深化设计、性能化设计、专有族库建立等;构件生产阶段主要应用点分为预制构件深化加工、预制构件分类提取工程量等;施工安装工作阶段主要应用点为模型深化、场地布置及设备管理、施工组织模拟、预制构件吊装模拟、专项工艺模拟、施工图纸变更管理、分阶段施工算量统计等。
该项目采用BIM正向设计,在项目从草图设计阶段先由BIM三维模型完成。直接在三维环境里进行设计,利用三维模型和其中的信息,自动生成所需要的图档,模型数据信息一致完整,并可后续传递。BIM技术首先介入分析,提高图纸质量。
BIM模型
该项目实行智慧工地应用,充分利用物联网技术和移动应用提高现场管控能力。通过传感器、摄像头、人脸识别装置、手机及平板电脑、无人机等物联设备,实现对项目建设过程的实时监控、智能感知、数据采集和高效协同,实现工地的数字化、精细化、智慧化。
版权声明:我们致力于保护作者版权,注重分享,被刊用文章【施工组织设计案例(工业上楼)】因无法核实真实出处,未能及时与作者取得联系,或有版权异议的,请联系管理员,我们会立即处理! 部分文章是来自自研大数据AI进行生成,内容摘自(百度百科,百度知道,头条百科,中国民法典,刑法,牛津词典,新华词典,汉语词典,国家院校,科普平台)等数据,内容仅供学习参考,不准确地方联系删除处理!;
工作时间:8:00-18:00
客服电话
电子邮件
beimuxi@protonmail.com
扫码二维码
获取最新动态
