目 录
1、编制依据 1
2、工程概况 2
3、节能设计及主要参数 3
3.1建筑节能做法概述 3
3.2外墙装修做法 3
3.3 EPS板薄抹灰外墙外保温系统性能指标 4
3.4 岩棉板双层玻纤网薄抹灰外墙外保温系统性能指标 3
3.5岩棉板防火隔离带性能指标 6
3.6勒脚挤塑聚苯板系统 8
3.7门窗 8
4.施工安排 9
4.1基本要求 9
4.2施工准备 10
4.3劳动力计按照划、主要施工机具计划 12
5.施工方法 14
5.1样板施工 14
5.2外墙保温工艺流程 14
5.3操作步骤及施工要点 16
5.4节能构造节点详图 30
6.质量验收 35
6.1一般规定 35
6.2主控项目 35
6.3 一般项目 36
6.3质量通病及防治措施 37
6.4质量保证措施 38
7.成品、半成品保护措施及施工注意事项 39
7.1成品、半成品保护措施 39
7.2施工注意事项 40
8.季节性施工措施 41
9.安全保障措施 41
10.消防及防火安全措施 43
11文明施工及绿色施工措施 44
1、编制依据
2、工程概况
1)工程名称:
2)工程地点:
3)建设单位:
4)监理单位:
5)设计单位:
6)施工单位:中建二局第三建筑工程有限公司
7)施工分包单位:
6)监督单位:
表2-1 项目及单体概况表
3、节能设计及主要参数(本章节相关参数仅供参考,本章节内容主要参考了国标和天津市地方标准,天津市地方标准相对国标有所细化,实际编制过程中,要以实际使用的材料按国标和工程所属当地标准要求填写试验项和合格标准为准)
3.1建筑节能做法概述
表3-1 各部位节能做法概述
3.2外墙装修做法
表3-2 营造做法表(仅供本方案参考,应以实际做法为准)
3.3 EPS板薄抹灰外墙外保温系统性能指标
表3-3 EPS板薄抹灰外墙外保温系统性能指标
表3-4 EPS板性能指标
表3-5 EPS板胶粘剂性能指标
表3-6 EPS板抹面胶浆性能指标
表3-7 EPS板耐碱玻纤网格布性能指标
表3-8 EPS板锚栓性能指标
3.4 岩棉板双层玻纤网薄抹灰外墙外保温系统性能指标
表3-9 岩棉板双层玻纤网薄抹灰外墙外保温系统性能指标
表3-10 岩棉板性能指标
表3-11 岩棉板界面剂性能指标
表3-12 岩棉板胶粘剂性能指标
表3-13 岩棉板抹面胶浆性能指标
表3-14 岩棉板耐碱玻纤网布性能指标
表3-15 岩棉板锚栓性能指
表3-16 岩棉板找平砂浆性能
3.5岩棉板防火隔离带性能指标
表3-17 岩棉板防火隔离带性能指标
表3-19 岩棉板防火隔离带耐候性能指标
表3-20 岩棉板防火隔离带其他性能指标
表3-21 岩棉板防火隔离带胶粘剂的主要性能指标
表3-22 岩棉板防火隔离带抹面胶浆的主要性能指标
3.6勒脚挤塑聚苯板系统
表3-23 XPS板性能指标
表3-24 XPS板粘结砂浆性能指标
表3-25 XPS板粘抹面砂浆
3.7门窗
描述本工程门窗类型。
表3-26 门窗玻璃参数
1)外墙保温施工确保现场环境和基体表温度温度不低于5摄氏度;
2)如遇五级以上大风天气不进行外墙保温施工作业;
3)雨天气不进行外墙保温施工,如施工过程中遇突然降雨,立即停止施工并采取塑料布对已施工部位进行覆盖挡雨加以保护,复工前对上述部位进行检查,如胶粘剂受到雨水冲刷则将保温板揭掉重贴;
4)避免阳光直射;夏天应避免暴晒;
1)除实体混凝土墙体外砌筑墙体等位置,墙体外面抹1:3水泥砂浆找平层,找平后砌筑墙体位置与混凝土墙体位置一平。外墙找平层表面干燥、洁净,平整度、垂直度达到规范验收要求,阴阳角方正;
2)将外墙外保温施工的混凝土墙面基体杂物清理干净无油渍、浮尘、污迹、脂肪类物质等,墙表面凸起物≥10mm应铲平,空鼓开裂处剔凿后修补平整,墙面松动、风化、霉变、泛碱部位应剔凿清除干净并用角磨机打磨基层墙面后,使基体表面尺寸偏差符合下表规定方可施工;
表4-1 基层墙体尺寸偏差
3) 外墙上的螺栓孔参考如下做法封堵:
①在墙体穿墙孔内用干硬性细石混凝土(内掺微膨胀剂)进行封堵严密;
②对封堵的孔洞表面进行收抹平整;
③在外墙外侧涂刷一道¢150*1.0(厚)聚氨酯防水涂膜。
4)伸出外墙面上的雨水管卡、预埋件、支架和设备穿墙管安装到位,并留出外墙保温层的厚度,并做必要的防锈处理;
5) 保温施工前对建筑物及墙面作认真的实地考察和检验,保证基层面已干燥并验收合格,各种预埋下管线,雨水管支架,空调预留洞等与外保温施工有关工序已施工完成;
6)结构墙体存在预埋件焊接部位,外保温施工前焊接到位;
7)门窗、室外(门窗的)卷帘,特别是水平设置的盖板(如窗台板,女儿墙盖顶板),必须在外保温体系施工之前安装完毕,并将洞口四周的缝隙填堵密实。外墙面设置的通风口的护拦、固定管道、空调等用的支架也应预先安装完毕。
8)门窗洞口尺寸满足设计要求,大墙面挂水平线、垂直线后不满足要求的需进行剔除,修正;
9)所有水平方向的构件(如挑檐、窗台板、女儿墙盖顶板、固定外墙面构件用的支架等)都需预留外保温体系所需的施工厚度,并做必要的滴水处理或防锈处理。
施工前应对图纸进行认真审核,了解施工部位和技术要求,制定外墙保温施工方案,并对作业人员进行技术交底。
1)外墙外保温工程所用材料,按设计要求选用,并符合国家和当地相关标准的要求。材料进入现场生产厂家必须提供法定检测报告及出厂合格证,产品包装完好。
2)项目开工前,向生产部门提出一次性计划,作为供应备料依据;在施工中,根据工程变更及调整的施工进度,及时向生产部门提出调整供料计划,作为动态供料的依据;按施工进度对材料计划的执行情况进行检查,不断改进材料供应。
3)所有的材料均提前进场,进场时加强检查验收,严把质量关,材料进场后及时在监理的见证下取样复试,并做好材料的标识工作,避免不合格材料用到工程中。
4)砂浆配置
1) 粘结砂浆的配制
粘结砂浆采用成品干粉料,并严格按照产品使用说明书进行现场配制,专人负责,严格计量,机械搅拌,确保搅拌均匀。拌好的粘结砂浆在静停20分钟后,还需经二次搅拌才能使用。配好的料注意防晒避风,以免水分蒸发过快。一次配制量应在可操作时间4h内用完。
2) 聚合物砂浆的配制
配制:按说明书进行配制,需要注意的是,在规定加量范围内,斜面、立面施工时,加水量应尽量少些;当施工温度高于25℃而小于38℃时应适当多加水;当施工温度小于15℃时,适量少加水。 聚合物砂浆及专用粘结剂性符合10J121《外墙外保温建筑构造》
拌料:将称好的粉料放入拌料桶中,边搅拌边徐徐加入小量的水,继续搅拌至水和粉料充分混合(搅拌时间约 3分钟);然后将称好的液料和剩余的水全部倒入拌料桶中,再接着搅拌均匀至不含团粒的浆粒(整个搅拌过程一约为6—8分钟)即可施工。聚合物砂浆不得任意加水,应在4h内用完。
表4-2 外墙保温材料进场复试批次划分(以实际材料和地标填写)
备注:按照《建筑节能工程施工质量验收规范》(GB50411-2007)要求,保温材料、胶结剂、增强网还应满足建筑面积在20000㎡以下时,抽检不少于3次;建筑面积在20000㎡以上时,抽检不少于6次。
表4-3 劳动力计划表
表4-4 施工机具表
4.4施工安排和部署
本工程的合同工期、主体结构里程碑节点、工期要求等情况。
本工程的标段划分情况,吊篮布置情况,施工流水情况,及对应劳务划分情况。流水段划分详见附图X。
4.4.3.1管理层负责人及职责如表4-5、表4-6。
表4-5 施工机具表
表4-6管理层负责人职责一览表
4.4.3.2劳务分包单位负责人及职责
表4-7 劳务层负责人及职责表
施工前按照本工程的技术要求,选定系统供应商,系统组成材料进场后经验收合格及时在监理单位的见证下取样复试。材料复试合格后,采用系统组成材料,做外墙保温样板墙,样板墙反映出保温板的粘贴方法、粘贴面积如何控制、板缝错位处理、阴阳角处理、锚栓固定方式及数量、胶粘剂的配比和控制、面层砂浆的配比和控制、如何处理粘贴基层的缺陷等。样板施工完成后由建设、设计、监理及施工单位等现场进行检验,合格后形成样板记录,施工前组织操作人员进行样板观摩,做好样板交底,施工中严格按样板的要求控制。
样板位置根据工程实际情况选取,并附图。
图5-1 样板位置示意图
模拟33层某住宅楼首层外墙保温材料为100mm厚的A级岩棉板,二层及以上外墙保温材料为100mm厚的B1级模塑聚苯板,并在每层设置300mm宽、100mm厚水平防火隔离带,防火隔离带的材料为岩棉防火保温板。在首层外墙根部设置防潮隔离带,防潮隔离带采用挤塑聚苯板,外墙从散水开始设置450mm高挤塑聚苯板做为防潮隔离带,门厅部位防潮隔离带高度为高出地面250mm。
本作法粘板时由下往上施工,抹面时由上到下施工,按工艺流程图的程序施工。
图5-2 EPS板薄抹灰外墙外保温系统施工工艺流程
图5-3 岩棉板双层玻纤网薄抹灰外墙外保温系统施工工艺
5.3.1外墙保温板施工
1、粘贴保温板
(1)保温板切割:标准板面尺寸为(900~1200mm)×600mm×100(90)mm,对角线及板厚误差1.5mm,非标准板按实际需要的尺寸加工,尺寸允许偏差为2mm,大小面垂直。现场裁切保温板时,切口与板面应垂直,墙面的边角处应用宽度不小于300mm的保温板粘贴。最后在保温板表面涂刷专用界面剂。
(2)粘接剂配制:将外保温专用粘结干粉与水按比例配制,用电动搅拌器搅拌均匀,一次配制量以2小时内用完,若使用中在2小时内有过干现象出现,可适当加水再次搅匀使用,超2小时后不可在加水使用。注意:专用粘结剂的配置只许加入净水,不得加入其他添加物(剂)。
(3)粘接方式:保温板应按水平顺序排列,上下层错缝粘贴,阴阳角处保温板交错互锁。板与板之间应严密,无粘接剂,门窗洞口处四周保温板不得拼接,应采用整块保温板切割成形,保温板接缝应离角部至少200mm。
(4)保温板粘贴方法采用条粘法,是在保温板的粘贴范围抹30mm宽、10mm厚的粘结砂浆条,并在周边留出10mm的排气通道,其间距为40mm,确保粘贴有效面积大于50%,见下图:(宽度、间距、粘贴面积等以当地地标要求为准)
图5-4 条粘法示意图
(5)抹完粘结剂后,立即将板立起粘贴,粘贴时轻揉、均匀挤压,并用托线板检查垂直平整,板与板间挤紧,碰头缝处不留粘接剂。粘贴模塑聚苯板时应做到上下错缝,板间不留间隙。阴阳角处做错槎处理,详见图5-5;
图5-5 保温板转角排列示意图
(6)整块墙面的边角处应用最小尺寸不小于300mm的保温板粘贴,保温板的拼缝不得正好留在门窗口的四角处;保温板接缝距角部的最小尺寸不小于200mm。
模塑聚苯板接缝不平处应处理平整,打磨动作宜为轻柔的圆周运动,磨平后应用刷子将碎屑清理干净。磨平工作应在模塑聚苯板粘贴24小时后进行,以避免对模塑聚苯板粘贴层的扰动。
(7)板缝要求不能大于2mm,方差不能大于1mm,并且均用聚氨酯发泡填平。
(8)岩棉板粘贴特殊要求
在基层平整度大于5mm/2m时,须使用点框法粘贴(见图5-6),粘贴应车固,不得有松动和空鼓,板缝应挤紧,相邻板应齐平。板问缝隙应用岩棉条填塞,板间高差不得大于1.5mm,板问缝隙不得大于1.5mm。
点框法粘贴示意图
2、安装锚固件
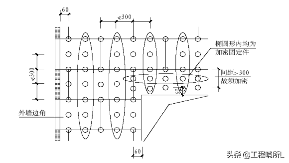
(1)锚固件使用有双层垫圈的膨胀螺栓(ø8×180)。锚固件的安装要在模塑聚苯板粘贴完成24小时后进行。安装锚固件之前,先用直径为8mm的电锤在墙体上进行打孔以安装锚固件,打孔后胀栓带塑料圆盘装入孔中。凡是三块相邻模塑聚苯板接触的“T”型接缝处必须设一个锚固件,锚栓为6~8个/㎡。由于不同厂家提供的保温系统抗风压强度和锚栓材质不同因而使用数量有差别,加密时需沿板材接缝处及板材中部加密。墙面排版要从墙的大角和门窗边框开始。同时首层岩棉保温板锚栓呈梅花型布置,每平米不少于10个。(锚固件数量及做法参考天津市地标,仅供参考,国标无明确要求时,实际编制时应参考当地标准编制。)
二层及以上锚固件布置图示如下:
图5-6 2-15层锚固件布置图
图5-7 15层以上锚固件布置图
(2)锚固深度混凝土墙为≥30㎜;填充墙为≥50㎜。
(3)阳角、孔洞边缘及窗四周在水平、垂直方向2m范围内锚固件需加密,间距不大于300mm,距基层边缘为60mm。如下图所示:(此做法为项目根据前期经验深化做法,规范无明确要求,可参考使用。)
图5-8 墙体边角、洞口处锚固件示意图
(4)安装后的锚固件应与保温板相平。任何面积大于0.1㎡的单块保温板必须加固定件,机械锚固件在阳角、门窗洞口边缘和变形缝两侧适当加密设置,采用锤击或拧入式安装。
3、打磨找平
(1)保温板接缝不平处应进行打磨,打磨动作宜为轻柔的圆周运动,不要沿着与保温板接缝平行的方向打磨;
(2)打磨后应用刷子或压缩空气将打磨操作产生的碎屑、浮灰清理干净。对保温板粘贴不平处,应用面层砂浆找平;
4、铺设耐碱玻纤网格布
(1)耐碱玻纤网格布铺设时,在保温层表面涂抹抹面胶浆,压入耐碱玻璃纤维网布。
(2)门窗洞口处,沿45度角方向各加一层300×200mm进行耐碱玻纤网格布加强,加强网位于大面耐碱玻纤网格布下面。
图5-9 门窗洞加强做法示意图
(3)网格布铺贴时必须满足平面100mm的搭接长度。拐角部位网格布要保持连续性,并从两边双向绕角。包墙宽度阳角处不小于200mm,阴角处不小于100mm。
图5-10 阳角做法示意图
图5-11 阴角做法示意图
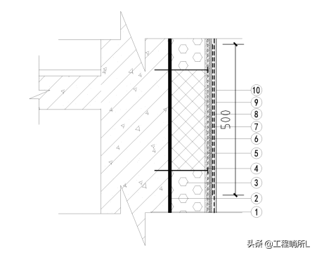
注释:①混凝土或蒸压加气块墙体、②粘接砂浆、③保温板(外刷专用界面剂)、④抗裂砂浆、⑥锚栓+抗裂钢丝网(或锚栓)、⑦抹平砂浆、⑧抹面胶浆,耐碱玻璃纤维网布、⑨挂柔性耐水腻子、⑩底层及面层涂料
(4)耐碱玻纤网格布应铺设应平整,不得皱折、翘曲,耐碱玻纤网格布搭接宽度不小于100mm。保温板与地面连接处、门窗口边及侧边外露处应做网格布翻包处理。翻包网格布处涂抹聚合物砂浆,然后将裁好的网格布压入砂浆中,待砂浆初凝后,方可进行下道工序。搭接长度见下图:
图5-12 翻包做法示意图
5、抹面胶浆施工
首层外墙保温板外层为两层3mm厚抹面胶浆+耐碱网格布,下层耐碱网格布为加强型。
二层及以上楼层外墙保温板外层为抹面胶浆,抹抹面胶浆之前要在保温板外涂刷保温板专用界面剂,在界面剂未完全干燥之前完成抹面胶浆的施工,以保证抹面胶浆与保温板粘接牢固。
抹面胶浆采用抗裂砂浆,抹灰厚度6mm,中间压入网格布。
抹面胶浆施工应跟进保温板粘贴施工,保温板粘贴裸露高度不应超过3层,要做到及时覆盖防护层。
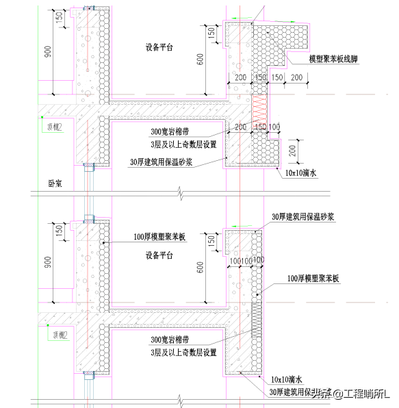
6、防火隔离带做法:
在每两层设置防火隔离带,防火隔离带要求每层布置,防火隔离带上边沿与建筑层高齐平,防火隔离带采用防火性能为A级的岩棉防火保温板,防火隔离带的宽度为300mm,厚度为100mm(90mm),沿墙通长设置,在水平方向连续交圈。
(1)岩棉防火保温板的粘贴要与模塑聚苯板粘贴按统一工序进行,即由下至上先进行保温板的粘贴,粘贴高度达到防火隔离带位置时,再由墙体一端的阳角开始进行岩棉保温板的粘贴。严禁进行防火隔离带位置预留后,再进行后塞式施工工序。
(2)岩棉保温板涂胶后要及时粘贴,粘贴时应轻柔滑动部位,不得局部用力按压,岩棉保温板对缝应挤拼,并与模塑聚苯板齐平。保温板与保温板之间的间隙不应大于2mm,板间高差不得大于1.0mm。
图5-13 防火隔离带节点图
图5-14 防火隔离带立面图
图5-15 防火隔离带锚栓布置立面图
图5-16 防火隔离带锚栓布置断面图
注释:①混凝土墙体或梁、②粘接砂浆、③岩棉板(外刷专用界面剂)、④抗裂砂浆、⑥锚栓、⑦抹平砂浆、⑧抹面胶浆,耐碱玻璃纤维网布、⑨挂柔性耐水腻子、⑩底层及面层涂料
7、勒脚做法
在首层外墙根部设置防潮隔离带,防潮隔离带采用挤塑聚苯板,外墙从散水开始设置450mm高挤塑聚苯板做为防潮隔离带,门厅部位防潮隔离带高度为高出地面250mm。
图5-17 勒脚节点图1(门厅部位)
图5-18 勒脚节点图2
8、嵌固带及托架做法
首层岩棉板与防潮隔离带间设置铝合金托架带,托住保温板和抹面砂浆以减轻荷载,以提高整个系统的安全性能,七层及以上奇数层设置嵌固带,十八层及以上每层设置嵌固带。嵌固带采用铝合金托架,规格为44×24×1.8㎜,设在层间楼板的上口位置;固定膨胀管螺栓直径10mm,间距为每米不少于三个,嵌固带应连续设置。
首层沿水平线安装托架,水平线以下粘贴难燃挤塑聚苯板,水平线以上粘贴岩棉板(或带)。安装托架必须保证托架处于水平的位置,两根托架之间应留有3mm的间隙,托架水平方向宽度(A)应小于岩棉厚度。托架示意图如下
图5-19 托架示意图
9、不同材料交接处保温构造做法
1)防火隔离带与模塑聚苯板交接做法
防火隔离带对缝应挤拼,并与模塑聚苯板齐平。岩棉隔离带与保温板之间的间隙不应大于2mm,板间高差不得大于1.0mm。
防火隔离带部位应加铺底层玻纤网格布,底层玻纤网格布位于锚栓底部,垂直方向超出防火隔离带上下边缘均不得小于100mm,水平搭接100mm,搭接位置离防火隔离带保温板接缝位置不得小于100mm。面层玻纤网格布的上下如有搭接,搭接位置距离隔离带不得小于200mm。
防火隔离带上方设置铝合金托架作为嵌固带,防火隔离带之间及其与模塑聚苯板之间缝隙采用聚氨酯泡沫塑料棒填充,并用油膏嵌缝。
图5-20 防火隔离带与模塑聚苯板交接做法示意图
2)防潮隔离带与地下室挤塑聚苯板交接做法
防潮隔离带与室外散水及地下室挤塑聚苯板之间采用挤塑聚苯板条、聚氨酯塑料棒、建筑密封胶嵌缝,室外散水与挤塑聚苯板间采用建筑密封膏嵌缝。
图5-21 防潮隔离带与地下室挤塑聚苯板交接做法示意图
3)岩棉板与模塑聚苯板交接做法
岩棉板与模塑聚苯板交接部位加铺底层玻纤网格布,底层玻纤网格布位于锚栓底部,垂直方向超出交接部位上下两侧均不得小于100mm,水平搭接100mm。岩棉板与模塑聚苯板交接部位采用聚氨酯泡沫塑料棒填充缝隙,用油膏嵌缝。
图5-22 岩棉板与模塑聚苯板交接做法示意图
4)岩棉板与挤塑聚苯板交接做法
岩棉板与挤塑聚苯板交接部位加铺底层玻纤网格布,底层玻纤网格布位于锚栓底部,垂直方向超出交接部位上下两侧均不得小于100mm,水平搭接100mm。岩棉板与挤塑聚苯板交接部位设置托架,并采用聚氨酯泡沫塑料棒填充缝隙,用油膏嵌缝。
图5-23 岩棉板与挤塑聚苯板交接做法示意图
5.4.1门窗洞口处保温板布置:
图5-23 门窗洞口保温板排布
图5-24 飘窗洞口保温板排布
5.4.2预埋套管等部位节点做法:
图5-25 预埋(套)管部位节点图
5.4.3外挑板节点做法:
图5-26 外挑板节点图
注:百叶格口处外保温施工时,应保证施工完后,百叶洞口中心点在水平及垂直方向分别在同一直线上,并且保证洞口净空尺寸同百叶尺寸,保证百叶能够正常安装。
5.4.4窗口外墙保温做法:
图5-27 窗口外保温节点图
5.4.5装饰线条节点做法:
图5-28 装饰线条节点图
5.4.6外窗收口节点做法:
图5-29 外保温外窗部位收口做法
5.4.7外墙补洞施工工艺
外墙孔洞内部填满干硬性防水砂浆(内掺微膨胀剂),两端于墙体表面抹平,在外墙外侧采用聚氨酯防水材料涂刷两遍。涂刷聚氨酯时,每边宽处孔洞50mm,并刷出规则圆面。
图5-30 外墙补洞做法
5.4.8雨水管卡根部处理
雨水管卡安装前必须经过防锈处理,雨水管卡安装后,其与保温板间缝隙采用聚氨酯发泡填充,并在缝隙表面采用防水油膏嵌缝。达到防锈、防渗同时起作用。
6.1.1墙体节能工程验收的检验批划分应符合下列规定:
1、采用相同材料、工艺和施工做法的墙面,每500~1000m2面积划分为一个检验批,不足500m2也为一个检验批。
2、检验批的划分也可根据与施工流程相一致且方便施工与验收的原则,由施工单位与监盘(建设)单位共同商定。
6.1.2允许偏差项目
表6-1 模塑聚苯板安装的允许偏差及检查方法
6.2.1用于墙体节能工程的材料、构件等,其品种、规格应符合设计要求和相关标准的规定。
检验方法:观察、尺量检查;核查质量证明文件。
检查数量:按进场批次,每批随机抽取3个试样进行检查;质量证明文件应按照其出厂检验批进行核查。
6.2.2墙体节能工程使用的保温隔热材料,其导热系数、密度、抗压强度或压缩强度、燃烧性能应符合设计要求。
检验方法:核查质量证明文件及进场复验报告。
检查数量:全数检查。
6.2.3墙体节能工程采用的保温材料和粘结材料等,进场时应对其下列性能进行复验,复验应为见证取样送检:
1.保温材料的导热系数、密度、抗压强度或压缩强度;
2.粘结材料的粘结强度;
3.增强网的力学性能、抗腐蚀性能。
检验方法:随机抽样送检,核查复验报告。
6.2.4严寒和寒冷地区外保温使用的粘结材料,其冻融试验结果应符合该地区最低气温环境的使用要求。
检验方法:核查质量证明文件。
检查数量:全数检查。
6.2.5墙体节能工程施工前应按照设计和施工方案的要求对基层进行处理,处理后的基层应符合保温层施工方案的要求。
检验方法:对照设计和施工方案观察检查;核查隐蔽工程验收记录。
检查数量:全数检查。
6.2.6期体节能工程各层构造做法应符合设计要求,并应核照经过审批的施工方案施工。
检验方法:对照设计和施工方案观察检查;核查隐蔽工程验收记录。
检查数量:全数检查。
6.2.7墙体节能工程的施工,应符合下列规定:
1.保温隔热材料的厚度必须符合设计要求。
2.保温板材长基层及各构造层之间的粘结或连接必须牢固。
粘结强度和连接方式应符合设计要求。保温板材与基层的粘结强度应做现场拉拔试验。
3.保温浆料应分层施工。当采用保温浆料做外保温时,保温层与基层之间及各层之间的粘结必须牢国,不应脱层、空鼓和开裂。
4.当墙体节能工程的保温层采用预埋或后置锚固件固定时,锚固件数量、位置、锚固深度和拉拔力应符合设计要求。后置锚固件应进行锚固力现场拉拔试验。
检验方法:观察;手扳检查;保温材料厚度采用钢针插入或剖开尺量检查;粘结强度和锚固力核查试验报告;核查隐蔽工程验收记录。
检查数量:每个检验批抽查不少于3处。
6.3.1进场节能保温材料与构件的外观和包装应完整无破损,符合设计要求和产品标准的规定。
检验方法:观察检查。
检查数量:全数检查。
6.3.2当采用加强网作为防止开裂的措施时,加强网的铺贴和搭接应符合设计和施工方案的要求。砂浆抹压应密实,不得空鼓,加强网不得皱褶、外露。
检验方法:观察检查;核查隐蔽工程验收记录。
检查数量:每个检验批抽查不少于5处,每处不少于2m2。
6.3.3设置空调的房间,其外墙热桥部位应按设计要求采取隔断
检验方法:对照设计和施工方案观察检查;核查隐蔽工程验
检查数量:按不同热桥种类,每种抽查10%,并不少于
6.3.4施工产生的墙体缺陷,如穿墙套管、脚手眼、孔洞等,应按照施工方案采取隔断热桥措施,不得影响墙体热工性能。
检验方法:对照施工方案观察检查。
检查数量:全数检查。
6.3.5墙体保温板材接缝方法应符合施工方案要求。保温板接缝
检验方法:观察检查。
检查数量:每个检验批抽查10%,并不少于5处。
6.3.6墙体上容易碰撞的阳角、门窗洞口及不同材料基体的交接处等特殊部位,其保温层应采取防止开裂和破损的加强措
检验方法:观察检查;核查隐蔽工程验收记录。
检查数量:按不同部位,每类抽查10%,并不少于5处。
6.3.1空鼓、脱落
进行外墙保温操作时应保持正温,冬季不应施工;
基层表面偏差较大,基层处理或施工不当,如工序跟得太紧及粘结面积不够、分布不均,粘结强度很差,就容易产生空鼓、脱落;
粘结聚合砂浆配比不准,稠度控制不好,在同一施工面上采用几种不同的配合比,因而产生不同的干缩,亦会出现空鼓,因此,应严格按工艺操作,重视基层处理和自检工作,要逐块检查,发现空鼓的应随即返工重做;
6.3.2面不平
应加强对保温板粘结工序的操作和检查,网格布搭结的检查和处理。
6.3.3防裂措施
为防止保温板在拼缝处、门窗四角开裂,应增加附件网片,四角网片尺寸为200 x 400mm与窗角呈45度。在阴阳角部位也应加附加网。门窗洞口周边必须用整版裁割出轮廓、严禁碎拼。
6.3.4膨胀缝和装饰分格缝处理
保温板上的分缝有两类:一类为膨胀缝,保温板断开中间放入聚氨酯发泡,外表用油膏嵌缝。另一类为装饰分格缝,即在抹灰层上做分格缝。在每层层间水平分层处宜留膨胀缝,层间保温板和网格布均应断开,其间嵌入聚氨酯发泡,外表用嵌缝油膏嵌缝。垂直缝一般设装饰分格缝其位置宜按墙面面积留缝,在板式建筑中宜≤30㎡。
1)资料管理执行按规范、规程、地方标准、合同约定、图纸设计要求,严格按照程序办事,对每道工序进行检查验收,做到资料齐全无误。
2)在现场施工人员要服从工长及管理人员的正确指挥,对业主、监理提出的问题应虚心接受,立即整改,若有疑问,可与项目技术负责人联系。
3)做好工种施工的质量交接检查验收。凡每道工序施工完成须经验收合格后,方可进行下道工序,不合格的工序工种坚决返工重来。
4)要加强项目的质量管理工作,强化全员的质量意识,质量工作从每个员工抓起,从每道工序抓起,以优良的分项工程质量来保证整体工程质量的优良,保证项目计划的顺利实现。
5)建立健全质量保证体系,严格把关克服质量通病,质保体系内部执行三检制,既自检、互检、交接检制度,并落实到人。合格后报甲方及监理工程师验收。工序检验程序框架图:
图6-1 工序检验程序框架图
1.施工中各专业工种应紧密配合,合理安排工序,严禁颠倒工序作业;
2.对保温墙体作好保护层后,不得随意在墙体上开凿孔洞;如确实需要,应在聚合物改性砂浆保护层达到设计强度后方可进行,安装物件后其周围应恢复原状;
3.应严禁防止重物或尖物损伤破坏;
4.已施工的保温墙面在后续相关的施工中还应防止重物管件等撞击墙面;
5.粘贴保温板的墙面不得动火,如进行电气焊、气割等施工;
6.将材料堆放在指定的封闭仓库内,不得将保温板露天暴晒;
7.严禁踩踏窗台;
8.分格线、滴水槽、门窗框、管道、槽盒上残存砂浆,应及时清理干净;
9. 各种材料应分类存放并挂牌标明材料名称,不得用错。
10. 玻纤网裁剪应尽量顺经纬线进行。
11. 拌制聚合物砂浆宜用手提电动搅拌机进行搅拌,用毕清理干净。
12. 应严格遵守有关安全操作规程,实现安全生产和文明施工。
13.其它工种作业时应注意不得污染或损坏保温板板面,更不可践踏门窗洞口处的保温板。
14.施工现场应随时清理,用剩的材料随时放回库房,边角料随时清运到指定堆放处。
15.提前用塑料薄膜对铝合金门窗进行防护,防止污染。
16.基层抹灰在凝结前应防止风干,爆晒、水冲和振动,以保证各层有足够的强度。
17.严禁从窗洞口倒运材料,防止碰撞损坏窗框。
18.拆架子时应轻拿轻放,不得碰撞墙面。
19.材料应堆放在室内,地面应架空、通风,防止受潮污染。
20.外饰面完活后,易破损部分的棱角处要钉护角保护,其他工种操作时不得划伤面漆和碰坏石材。 21.完工的外挂石材应设专人看管,施工队长严格对施工范围的工人,监督检查,在班前做好成品保护教育。遇有危害成品的行为,应立即制止,并严肃处理。
22.各专业分包做好各个施工部位的交接手续。
1.严格控制聚合物砂浆的配合比,必须计量过磅。控制下料程序及搅拌时间,避免过度搅拌出现离析现象。保证施工环境和易性的要求,聚合物砂浆随用随配,配好的聚合物砂浆应在2小时内用完,遇炎热天气减少存放时间。
2.基层表面要整洁、干燥,对于油漆及其它污染物、有害物必须清除干净,对于凹凸不平处认真修补。
3.模塑聚苯板采用加热电阻丝切割,确保板材尺寸精确,裁口整齐。
4.网格布裁剪尽量顺经纬线进行。
5.严格控制模塑聚苯板的厚度、宽度,板中刮聚合物砂浆均匀。墙面贴板后必须用手或工具在整个板面上施加力,必须保证结合一致,粘结牢固。板缝相接紧密,挤入板侧的聚合物砂浆用灰刀刮净,板缝间距过大处采用聚氨酯发泡填实。
6.耐碱玻纤网格布下料按照需要的长度留出搭接长度,长度不得小于150mm,大墙转角处,网连续由转角一侧包至另一侧的长度不小于200mm。严格控制铺设网不产生皱褶,网埋入砂浆中裸露,表面平整,如发现网格布裸露用聚合物砂浆补涂。
7.各种材料分类存放并挂牌标明材料名称,不得用错。
8.施工中各专业工种应紧密配合,合理安排工序,严禁颠倒工序作业。对抹完聚合物水泥砂浆的保温墙体,不得随意开凿孔洞,如确实需要,在聚合物水泥砂浆达到设计强度后方可进行,安装完检查周围恢复原状。防止重物撞击墙面。
如工程在雨季施工,外墙保温施工应注意以下问题:
1)外墙保温施工时要随时注意关注天气预报,掌握气温变化。如果天气出现降温和降雨、雷电天气时,就应该立即停止施工。
2)粘贴保温板时,需将保温板与基层墙体的缝隙用胶浆抹严,严禁檐口、水漏口处的雨水等进入保温层,影响粘结强度。
3)雨后施工,被雨水浇过的墙体和苯板,需晾干后方可施工。
4)抹面时如遇雨季进行覆盖措施,已浇过的保温层雨后应及时刮掉,重新处理。
5)雨季施工应加强安全措施,防止板滑发生事故。
6)注意工地所用材料的贮存条件:所有的液体料或膏状料(如:双组份抹面砂浆的抹面胶料发泡胶等)应保持干燥,所有粉体材料应于干燥处存放。
外墙保温工程不得在日平均温度低于5℃的情况下施工。温度在28度以上天气施工时,若砂浆凝结过快,尽量避开日光暴晒时段。风力大于5级不施工,同时对未达到一定强度的保温面层用塑料薄膜覆。
安全生产是基建施工中的重要原则之一,安全为了生产,生产必须安全,应以“安全第一,预防为主”的方针指导工作,适当组织均衡的施工计划,避免施工高峰,减少交叉作业,电器设备安装,临时设施、脚手架的搭设,防火防爆的措施等等,都是我们在施工根据实际情况,组织编制好安全生产,文明施工切实可行的方案,才能保证我们在施工中顺利进行。 1)凡参加施工的人员必须进行安全生产教育及安全技术书面交底,从事高空作业人员必须定期进行体格检查,对患病不适应高空作业人同,不准从事高空作业。
2)线路架设符合安全规定和要求,加强临时电源的安全防护,夜间施工要有足够的照明设备并设专人值班,严禁非专职电工拉闸和合闸或随意拉线安装临时照明,现场所有机械设备都需设置接地装置。
3)脚手架搭设应按设计交底要求进行搭设,保证支撑牢固与墙体连接稳定。
4)加强安全保卫及安全工作检查制度,施工现场禁止随便进入,危险区设明显标志,夜间施工挂红灯。
5)现场成立安全管理小组,负责审查有关安全措施制度,进行宣传教育工作,监督安全措施的执行,组织安全技术培训,发现隐患及时消除,对违反安全操作规程的现象及时处理和纠正。
6)施工现场成立安全组织,工程负责人任组长,现场负责人为副组长,并设置安全员,搞好安全交底,安全教育严格执行安全规范的安全标准。
7)进场施工的人员须戴安全帽、高空作业系好安全带并挂在牢固处,不允许穿拖鞋,不允许在施工现场吸烟,遵守治安条例,不许打架斗殴。
8)上吊篮之前,要认真检查吊篮是否符合安全规范,坚决杜绝违章作业。
9)施工人员必须戴好安全帽,2米以上属高空作业必须系好安全绳、安全带,安全带高挂低用。
10)在脚手架上作业,严禁打闹,严禁拆改脚手架的一切防护措施,严禁往下扔东西,以免伤人。
11)施工人员不准酒后上岗、不准带病作业。
12)施工人员认真学习安全操作规程,提高安全意识,重点狠抓违章施工现象。
13)应严格按照施工外架搭设方案进行脚手架搭设,且牢固可靠,经验收合格后方可使用。脚手架上堆料不得集中堆放,物料工具应放稳,防止坠落伤人。脚手板应固定牢固,不得有探头板。脚手架必须满挂安全网,各作业层应满铺脚手板;
14)不允许穿硬底鞋、高跟鞋在架子上工作,在两层脚手架上操作时,应避免在同一垂直线上同时作业,必须同时作业时,下层操作人员必须戴好安全帽,并应设置防护措施;
15)遇大风大雨天气等恶劣天气时,不得进行室外高空作业;
16)建立完善的安全保证体系,并落实到人。
附安全保证体系图
安全保证领导组:(应写明姓名)
组 长:项目经理
副组长:执行经理
小组组长:机电经理、生产经理、安全总监、项目总工、商务副经理、项目书记
小组组员:机电施工员、土建施工员、安全员、技术员、试验员、测量员、资料员、预算员、材料员、消防保卫负责人以及外保温各分包单位负责人等
1)保温材料进场后,应远离火源。露天存放时,应采用不燃材料完全覆盖;存放量不应超过三天的工程需用量,周围10米范围内及上空不得有明火作业,不得放置易燃易爆等物品,储存区应配备足够的消防器材,指定专人维护、管理、定期更新,保证完整有效。
2)本工程保温施工期间不安排夜间作业。
3)外保温施工处严禁电焊防水喷灯以及明火施工来避免火灾发生,废料及时清理,每个吊笼配备一个干粉灭火器备用。
4)凡带电作业的中、小型操作机械施工人员穿带安全防护用品方可上岗操作。施工人员必须严格遵守安全操作规程,加强安全生产管理,确保安全生产。
5)电器设备使用前进行彻底检查,有故障的设备及破皮、漏电的电源线修好后方可使用。
6)工后将材料堆码整齐,工作现场清理干净,电器设备及工具回收入库。
7)需要采取防火构造措施的外保温材料,其防火隔离带的施工应与保温材料的施工同步进行。
8)不得直接在可燃保温材料上进行防水材料的热熔、热粘结法施工。
9)施工用照明等高温设备靠近可燃保温材料时,应采取可靠的防火保护措施。
10)施工现场应设置室内外临时消火栓系统,并满足施工现场火灾扑救的消防供水要求。
11)外保温工程施工作业工位应配备足够的消防灭火器材。
12)施工过程中严禁施工临时用电线路与保温材料直接接触,严禁穿墙孔、电气焊等与外墙外保温施工交叉作业,保温层施工完毕应按照规范要求及时做抹面防护层。
13)如附近有明火作业,必须严格执行动火审批制度,并指定专人负责巡视。动火作业结束后,应当做好清理工作,及时清除现场残留火种,防止死灰复燃。
14)施工中必须严格坚持“三层一覆盖”的施工方法,即保温板粘贴过程中裸露层数不超过三层。
15)施工过程中,正在施工的楼栋附近必须配备单独的消防器材,并且定期检查,保证消防器材能够正常使用,灵活有效。
1)现场建筑材料及周转材料必须按施工总进度计划准备,按计划分类分批进场,堆放整齐,做到随做随清,不用的材料及时退场,不占用主要交通道路,严禁乱堆乱放保护好施工现场的环境。
2)加强施工用水和施工用电的管理,严格禁止私拉乱接,保证施工机具一机一闸,下班后拉闸,不允许出现到处流淌、到处是线的现象。
3)各工种之间应紧密配合,相互之间进行逐层办理验收接班手续,分清责任。
4)合理安排有噪音污染的工种和工作时间,有噪音的操作尽量安排避开晚间22时-早晨6时,确保周围居民的生活休息。
5)加强现场保卫工作,进行法制宣传教育,严禁赌博,防止偷盗和打架事件发生。
6)废弃物应按环保要求分类堆放并及时予以清除;
7)加强成品保护工作,不踩已安装好的成品以防损坏。
8)搞好工种间的配合,做到文明施工、文明生产。
9)按照绿色施工方案,应将该阶段四节一环保指标分解到该方案中。
版权声明:我们致力于保护作者版权,注重分享,被刊用文章【内外墙抹灰施工合同(中建二局)】因无法核实真实出处,未能及时与作者取得联系,或有版权异议的,请联系管理员,我们会立即处理! 部分文章是来自自研大数据AI进行生成,内容摘自(百度百科,百度知道,头条百科,中国民法典,刑法,牛津词典,新华词典,汉语词典,国家院校,科普平台)等数据,内容仅供学习参考,不准确地方联系删除处理!;
工作时间:8:00-18:00
客服电话
电子邮件
beimuxi@protonmail.com
扫码二维码
获取最新动态
