有人拼尽全力,成为大城市的房奴,也有人反其道而行,回乡改造老房子,享受更轻松悠闲的生活方式。比如接下来分享的这套案例就属于后者,屋主不甘做房奴,回乡改造独栋小屋,一屋一庭院采用北欧度假风装修,由内至外的放松悠闲,让人羡慕。
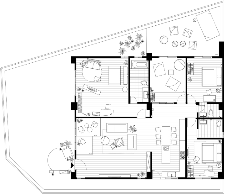
211㎡四房两厅还带庭院,室内格局方方正正,以回字型动线发挥最大空间价值。装修尽可能不改动原始格局,将原有装修替换成自己喜欢的北欧度假风装修。
改造前的户外玄关,墙面颜色过于厚重,无法串接改造后的室内风格,并且缺少收纳和相应的照明设计。
改造后的户外玄关,将墙面做刷白处理,改善原有视觉厚重感。搬离老气过时的家具,利用藤编元素和木质家具引领空间,地垫的铺设衍生出质朴韵味。前后对比,差距很明显。
改造前的客厅,装修比较简单,随着时间的推移,整个空间显得老气很多,而且颜色过于丰富,视觉上有些杂乱。
改造后的客厅,以北欧度假风为主轴,奶茶色的沙发和墙面,保持视觉上的统一。墙面透过白色蕾丝图案点缀,给空间带来几分清新舒适。
方形沙发凳和圆形藤编茶几,自由且随性地摆放,造就率性不羁的空间氛围。童趣感十足的吊椅,勾勒出一抹温馨童稚。
开放式的布局,动线更流畅,空间更开阔。电视墙依旧不做造型设计,隔板架取代了原有的电视柜,视觉感更加轻盈。原木色也更符合当前空间风格,搭配一些盆栽绿植,效果很耐看。
开放式的设计,客厅和餐厨之间做了隔断柜,提升空间收纳。柜子采用上下层设计,便于日常收纳的便捷。中间则作为平台区,摆放一些常用物品。
改造前的餐厨空间,颜色搭配并不是很满意,整体略显暗沉,不符合当今风格需求。
改造后的厨房,整体敞亮很多。保留了原有橱柜及中岛,以封板上漆的做法,覆盖米黄色墙砖,统一餐厨空间色调。
将原有餐桌改造成温润的原木色,搭配上藤编椅子,以及自然感十足的绿植款组合吊灯,营造出非常自然惬意的用餐氛围。
改造前主卧,简单的出租房装修风格,显得老气过时,并且空间利用率也不高。好在空间够宽敞,采光也不错。
改造后的主卧,特意挑选漂浮式床组,独树一帜的睡眠体验。背景墙以圆竹框编织蕾丝图案装点浪漫氛围。
木质家具、藤编元素的加入,让室内更具温馨气质。深色的木地板,更换成了浅色调,摆脱了深沉厚重,更加自然惬意。
原有多功能房,给人感觉依旧很深沉,而且框架式的窗户,加上低矮的窗帘设计,有种牢笼的感觉。
改造后的多功能房,以舒适的奶茶色搭配原木色,摆脱原有空间的深沉感,更显舒适温馨。窗帘做了抬高设计,搭配清透质地的窗帘,淡化方格带来的“牢笼”体验。
地面更换成木地板,并且局部做抬高设计,变成一方休闲空间,可以根据需求进行空间调整,空间非常有弹性。
剩下的次卧空间,原有装修几乎和主卧差不多,简单且老气的搭配,加上不合理的设计,导致空间感非常的压抑。
改造后的效果,前后对比差距不是一点点。背景墙利用裁切的木材装饰,手工染色突显纹路,高低错落的排序,展现韵律层次。
棉线吊挂深色漂流木形成衣架,下方两只木箱除了装饰作用外,还兼具收纳功能。
另一间次卧,布置相对简单很多,没有多余的装饰,仅布置了一张床,而且床头靠近房门,不是很理想。
改造后的效果,调整了床的摆放位置,拥有更好的空间体验。从墙面到地面,都进行了一次全新改造。
天花主灯、墙上工艺品、盖毯、地垫、窗帘、床头柜到储物篮,无一不透露着自然轻松感。
原始庭院,受限于草皮遇湿的尴尬,整体利用率并不高,并没有做太多的设计,真的有点浪费。
改造后的小庭院,移植国外度假特色,以铁件隔栅、防水帆布、木质材及石头漆墙面,围塑一方浪漫天地,享受轻松悠闲的生活。
看完案例感觉如何?是不是很向往这样的生活,一屋一庭院,可以享受慢节奏的生活,轻松惬意。如果是你会如何选择呢?是在大城市买房,还是回乡改造老房呢?
版权声明:我们致力于保护作者版权,注重分享,被刊用文章【北欧装修风格案例(不做房奴)】因无法核实真实出处,未能及时与作者取得联系,或有版权异议的,请联系管理员,我们会立即处理! 部分文章是来自自研大数据AI进行生成,内容摘自(百度百科,百度知道,头条百科,中国民法典,刑法,牛津词典,新华词典,汉语词典,国家院校,科普平台)等数据,内容仅供学习参考,不准确地方联系删除处理!;
工作时间:8:00-18:00
客服电话
电子邮件
beimuxi@protonmail.com
扫码二维码
获取最新动态
