建设地点
广西南宁
尺 寸
面宽17.0米 进深21.6米
建筑面积
688.0㎡
设计机构
项目概况
△总平面示意图
基地情况:
东:邻家住宅
西:邻家住宅
南:村内道路
北:树林
项目简介:
项目所在环境相对开阔,北侧有大片森林,业主在项目前期表示,对于立面效果方面有大致需求。设计师根据业主的需求和喜好,同时结合基地实际条件,将项目形式确定为南北朝向的的三层中式别墅。
平面布局
户型概况:
3层 / 10室 4厅 1中庭 1中堂 10卫 1厨 1配餐 1舞台区 2宴会厅 1棋牌 1茶室 4休闲区 2露台
△一层平面图
一层在功能上搭配庭院多车位为日常出入提供便捷;入户门厅结合中庭、门厅、中堂空间划分东西区域,同时公共区域多采用开放式设计,空间的整合使得室内拥有更好的通透感及开阔感。
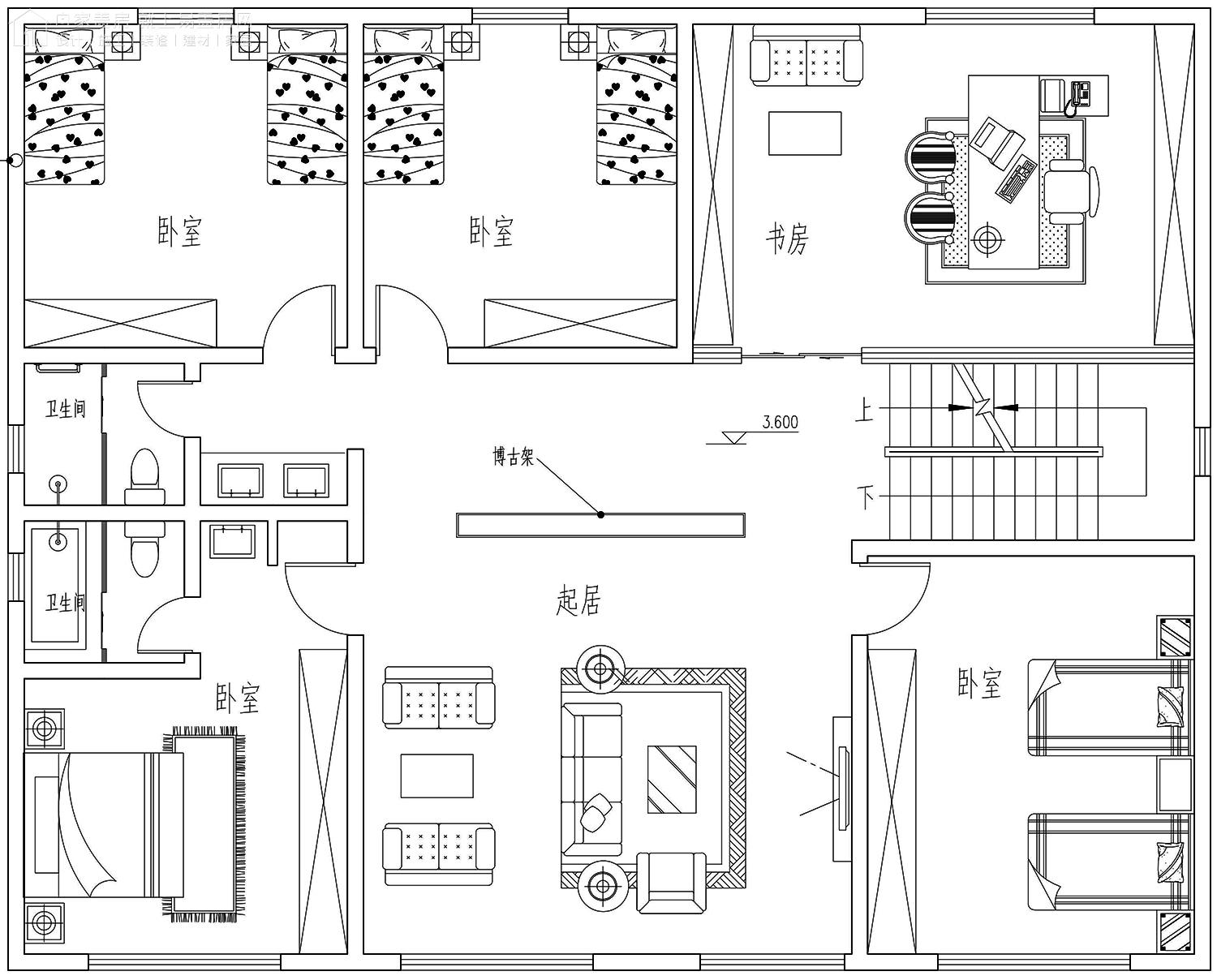
△二层平面图
二层以起居、接待为主,东、西两侧均设置卧室,均有直接对外的开窗,以保证室内的干燥和充足光照。
△三层平面图
三层为宴会场所,在北侧开设配餐区、舞台及双宴会厅,南侧搭配双休闲区和双露台。此外,三层补充了休息室以提升整体居住接待功能。
造型设计
△南侧效果图
建筑整体为经典的中式风格,外墙以真石漆为主,搭配木色窗框与灰色屋面瓦的传统搭配,营造出古朴淡雅的建筑韵味;方正的造型与装饰设计凸显建筑整体的威严感。
△东南侧效果图
建筑顶层大面积露台为居住提供极佳景观视野,南侧墙面开设玻璃窗增强室内休闲室采光,使得三层室内空间极其通透明亮。
△鸟瞰图
△露台效果图
露台开窗搭配窗檐,与屋檐造型呼应,突出中式传统风韵,院墙与庭院景观设置结合多种传统复古元素装饰,营造古色古香的空间体验。
△东立面图
△西立面图
△南立面图
△北立面图
建设地点
江西吉安
尺 寸
面宽15.0米 进深12.0米
建筑面积
558.0㎡
项目概况
△总平面示意图
基地情况:
东:窄巷+邻居
西:自家旧宅
南:村内道路
北:庭院+绿地
项目简介:
项目所在位置环境相对开阔,西侧和北侧为大片自家基地空间,其中北侧作为庭院空间使用。业主在项目前期提供了手绘的平面布局图纸与设计师沟通,对于立面效果方面则提出希望建为风格相对传统的样式。
设计师根据业主的需求和喜好,同时结合基地实际条件,将项目形式确定为坐南朝北的三层中式别墅。
平面布局
户型概况:
3层 / 6室 2厅 3卫 1厨 1设备 1棋牌 1车库 1书房 1茶室 1阳光房 1景观房 1储藏 1露台
△一层平面图(下方为北)
建筑从北侧入户,所有空间均通过鲁班尺确定尺寸。一层在功能上搭配车库为日常出入提供便捷;入户门厅结合直通走廊划分东西区域,对位设置神龛;同时公共区域多采用开放式设计,空间的整合使得室内拥有更好的通透感及开阔感。
△二层平面图(下方为北)
二层利用向阳面设置卧室和书房空间,南侧搭配起居室和更多居住空间,大面积开窗充分确保室内的采光效果。
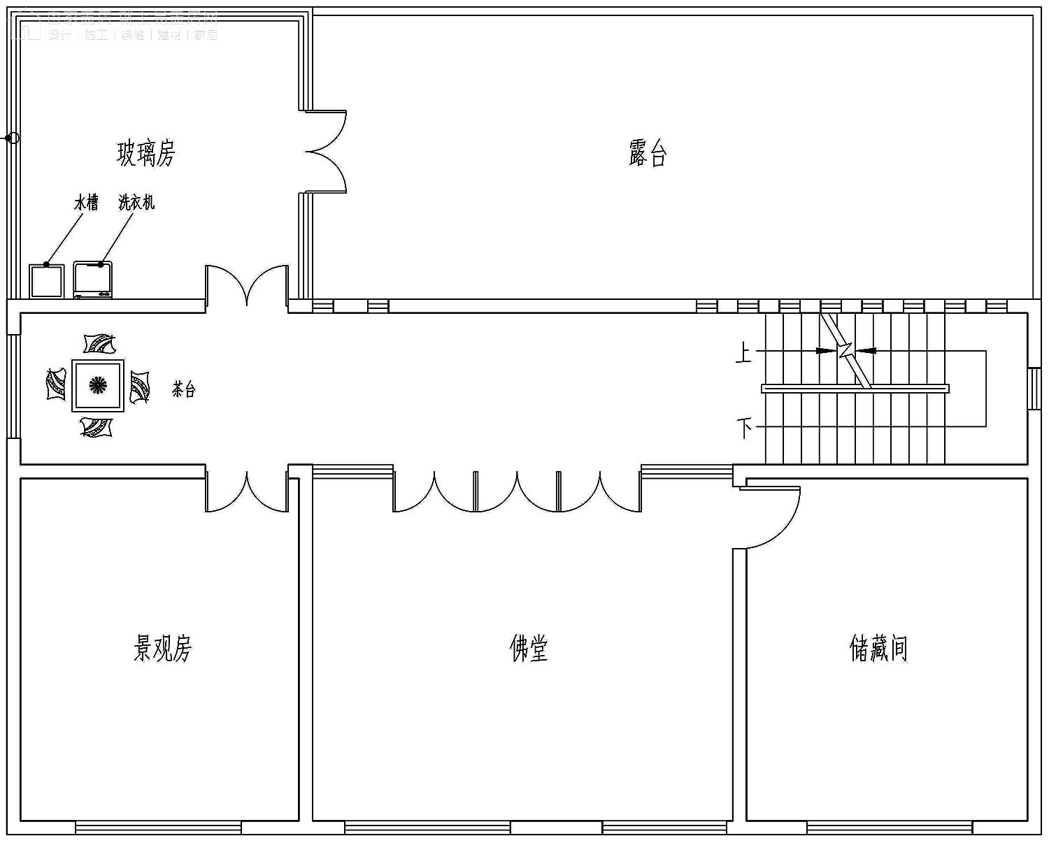
△三层平面图(下方为北)
三层在南侧开设玻璃阳光房和露台,南侧搭配景观室和佛堂,西侧摆设茶台,多种休闲与活动空间大大丰富了居住的功能体验。
造型设计
△人视图
△鸟瞰图
建筑整体为经典的中式风格,灰色贴面砖与白色真石漆、灰色屋面瓦的传统搭配,营造出古朴淡雅的建筑韵味;方正的造型与装饰设计凸显建筑整体的规模感和威严感。
△人视图
△鸟瞰图
立面开窗搭配窗檐,与屋檐造型呼应,突出中式传统风韵,院墙与庭院景观设置结合多种传统复古元素装饰,营造古色古香的空间体验。
△人视图
建筑顶层大面积露台为居住提供极佳景观视野,北侧墙面开设多条长玻璃窗增强室内走廊采光,同时搭配大面积屋顶天窗,使得三层室内空间极其通透明亮。
△东立面图
△西立面图
△南立面图
△北立面图
建设地点
海南三亚
尺 寸
面宽10.7米 进深11.4米
建筑面积
298.0㎡
项目概况
△总平面示意图
基地情况:
东:邻家住宅
西:邻家住宅
南:村内道路
北:邻家住宅
项目简介:
业主在项目前期只提供立面造型的意向图,希望我们在此程度上进行优化。设计师根据场地情况以及业主的需求和喜好,将项目形式确定为南北朝向的三层新中式风格别墅。
平面布局
户型概况:
3层 / 5室 3厅 5卫 1厨 1储物 1书房 1棋牌室 1茶室 1健身 2阳台 2露台
△一层平面图
一层由中间区域的玄关和餐厅划分东西两侧功能空间,“L”型庭院作为公共空间。将餐厅、厨房、设备及储物间空间脱离主体,整层共设置三间卧室以提供更多的居住空间。
△二层平面图
二层空间主要用于休闲娱乐,东侧设置两间卧室,其中南侧的主卧搭配独卫和阳台,同时预留一层客厅的挑空空间,中部设置起居室和棋牌室,为日常起居提供更多娱乐空间。
△三层平面图
三层丰富二层的功能性需求,西北角和东南角的露台相呼应;南侧增设健身和茶室空间,向外延伸出阳台空间。
造型设计
△南侧效果图
建筑整体为新中式风格,材质上大量使用彩石漆作为主基调,搭配外墙干挂石材。从室内环境上来讲,也比传统合院使用感受更好。
△东南侧效果图
建筑的淡雅配色为庭院营造出更加温馨的氛围,包括空间的跳跃感,民族文化与现代气息的结合凸显出新中式风格的内在文化传承。
△西南侧效果图
△鸟瞰图
将南侧的客厅空间做挑空设计延至二层,外立面的部分搭配大型玻璃幕窗。顶层露台作为休闲、观景的场所,位置极佳,室内的采光效果,又能最大化地提升空间功能上的优势。
△鸟瞰图
△鸟瞰图
屋顶采用坡屋顶和平屋相交呼应,通过三个体块的功能性形成高低不等的设计,以提升主体建筑的层次感。
△东南侧效果图
△东立面图
△西立面图
△南立面图
△北立面图
版权声明:我们致力于保护作者版权,注重分享,被刊用文章【新中式案例(厉害了)】因无法核实真实出处,未能及时与作者取得联系,或有版权异议的,请联系管理员,我们会立即处理! 部分文章是来自自研大数据AI进行生成,内容摘自(百度百科,百度知道,头条百科,中国民法典,刑法,牛津词典,新华词典,汉语词典,国家院校,科普平台)等数据,内容仅供学习参考,不准确地方联系删除处理!;
工作时间:8:00-18:00
客服电话
电子邮件
beimuxi@protonmail.com
扫码二维码
获取最新动态
