花费百来万买的新房,若事后装完时,实景落地效果不如意,那该是多令人难过又糟心的事情。而华浔推出的全案设计,不仅能让业主在装修过程中省时、省力、省心,更重要的是在后期的实景还原程度可达到95%,可谓是“前期在效果图看到的样子,就是后期家真正的模样”。
这不,和顺园又一套成品工地完工交付,我们一起来看下,这样一套以长辈居住为主的三居室新房,有着怎样的实景还原程度吧!
项目地址:三祺和顺园
项目面积:130㎡
设计风格:新中式
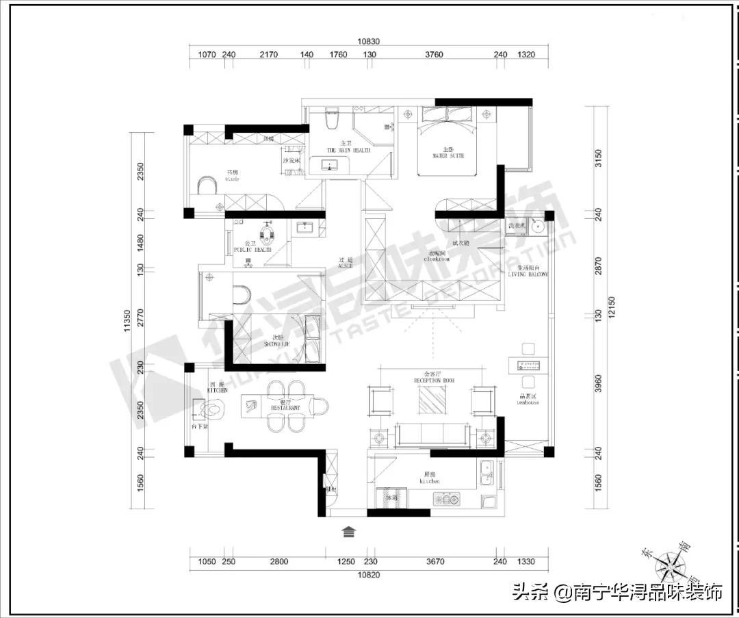
原始户型图
设计平面图
打破传统的中式布光,把无主灯设计与新中式风格相结合,营造视觉效果上的协调统一;通过由线至面、由浓到淡的色彩层层递进,丰富空间层次感的同时,也营造出有别于常规的新中式雅韵。
新中式风格玄关实景
由于原户型入户处位置有限,仅在玄关处设计放置鞋柜,深棕色勾勒金边的柜体,搭配同色的细跟支撑和花纹别致的方形抽屉拉手,还未进门便感受到了中式韵味。
新中式风格电视背景墙实景
客厅背景墙选用木饰面和大理石做造型设计,在整面大理石背景墙的两侧暗藏灯带,起到提亮装饰的作用,配合其他光源,营造出多样化的家居灯光氛围。
新中式风格客厅实景
通过打造大面积落地玻璃窗,不仅把室内采光能力进一步提升,空间更通透明亮,还根据业主的喜好在景观阳台处设计了品茗区。
新中式风格餐厅实景
新中式风格餐厅挂画
考虑到常住人口和接待亲朋好友时不同的就餐需求,在餐桌的选择上选择可伸缩的木质桌面;墙上挂着一副造型别致的九鱼图,不仅有着吉祥如意的风水含意,也有财源滚滚、广为聚富的寓意。
新中式风格西厨区
其次,根据业主一家的生活需求,和原户型上餐厨空间不足的痛点,将原餐厅处的生活阳台设置成西厨区。
新中式风格品茗区实景
通过打通相邻两阳台,扩大阳台使用面积,将景观阳台分作品茗区和生活阳台两个功能区进行使用。
新中式风格品茗区茶宠
看着茶台上造型各异的一排茶宠,和展示柜上色彩各异的茶壶,无不展示出业主对于茶定有着自己独特的喜爱和见解。
新中式风格过道实景
过道部分用双眼皮吊顶做造型装饰,浅灰色地砖搭配黑色暗踢脚线,加以尽头处那副巨型刺绣装饰画,营造出古今交融的视觉冲击感,通过业主的介绍,在这幅深蓝色壁画里,共蕴含了七种不同寓意的美好祝愿,你能猜出多少个寓意呢?
新中式风格书房实景
新中式风格书房实景
考虑到家中常住人口还是以父母为主,通过沟通,将原本的四居室改为两居室,将次卧2和相连的阳台进行打通,作为书房进行使用。在房间内设计整面收纳柜,半开放式的设计更便于物品分类存储。
新中式风格卧室实景
新中式风格床头柜特写
主卧背景墙也采用棕、白两色的木饰面做造型装饰,木质半镂空的床头搭配一旁的深棕色方形床头柜、储物柜,在那扇屏风小摆件的点缀下更显中式韵味的古色古香。
新中式风格衣帽间实景
新中式风格衣帽间实景
将原户型中与主卧相邻的卧室打通并入主卧,设计成放置有两面到顶高柜的衣帽间,米白色的柜门与浅黄色木地板相对应,通过深棕色的柜体和铜色细致花纹把手的对比,提升空间层次感的同时,衬托椭圆形渐变晕染地毯这一视觉焦点。
在小浔看来,这套案例中最吸睛的除了过道处那副深蓝色的巨型刺绣,还有就是景观阳台处的窗帘了,透过室外的光线,窗帘上的山水墨画变得若隐若现,颇具朦胧美。
新中式风格阳台窗帘实景
不得不说,业主在装饰搭配上,有着有别于传统新中式搭配的想法,你能猜到,餐桌上的花束其实是以假乱真的吗?
版权声明:我们致力于保护作者版权,注重分享,被刊用文章【新中式风格案例(装修案例丨父母眼中的新中式风格)】因无法核实真实出处,未能及时与作者取得联系,或有版权异议的,请联系管理员,我们会立即处理! 部分文章是来自自研大数据AI进行生成,内容摘自(百度百科,百度知道,头条百科,中国民法典,刑法,牛津词典,新华词典,汉语词典,国家院校,科普平台)等数据,内容仅供学习参考,不准确地方联系删除处理!;
工作时间:8:00-18:00
客服电话
电子邮件
beimuxi@protonmail.com
扫码二维码
获取最新动态
