你需要在家办公吗?
家该如何设计才会不压缩生活功能?
这个案例很精彩,值得一瞧!
▲ 图片来源/ 星瀚设计
两名屋主都是艺术工作者,与设计师都是对”美”都有独到眼光的人,
一旦合作,会碰撞出什么火花?
尤其还要体现屋主爱旅游、爱生活的特质,并落实对美好生活的向往,
设计难度真不低!
这套140㎡的新屋,南北通透部分尚可,不过两位从事艺术相关工作的屋主认为,客厅不够充实、较为紧凑,加上部分工作需要在家里完成,因此希望客厅部分能更加释放。屋主提出的装修需求包括:
1. 客厅不够充实,希望更加得到释放。
2. 餐厨及岛台,希望融入西式感觉。
3. 希望厨房紧贴的房间变得不那么突兀。
▲ 图片来源/ 星瀚设计
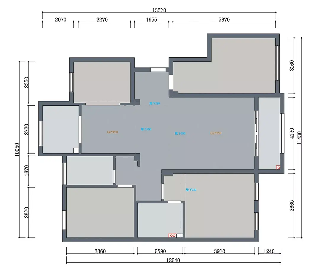
从户型图来看,原始建筑布局算方正,但公共场域的隔断略多,让客厅略显压抑,几个居室之间的交流也不足。
图片来源/ 星瀚设计
▲ 改造前
改造后户型
设计师拆除不必要的隔断墙,藉此放大公共场域,也创造相对宽敞的餐厨空间;并通过装修墙面的机会,一方面打造收纳柜体,同时也化解厨房紧贴房间的突兀感,并达到隐蔽的效果,让空间看起来更整齐。
图片来源/ 星瀚设计
▲ 改造后
至于细节上还有哪些设计巧思,现在一起看看星瀚设计的改造成果吧!
还记得屋主的需求吗?加上他们还希望公共场域不要特别死板,能保持家庭融洽的需求;因此,拿掉了几道与客厅相邻的墙,让餐厨、书房融入公共场域里,成就一个相对宽敞、开放的大空间。
▲ 图片来源/ 星瀚设计
其次,设计师认为生活已纷杂纷扰,因此采取简约的空间设计,让屋主一进入这空间里即能释放杂念;于是,设计上除了减少繁复的布置,并采用黑白灰塑造整体色调,而这一点屋主及设计师都有这样的共识。
▲ 图片来源/ 星瀚设计
其他设计细节;拆除原本与书房为界的隔断墙,改用一个KD板悬空吊柜当电视墙,下方则以石材做衬托,兼具质感及稳定性,另在顶部嵌入了投影设备,需要时再放下屏幕,维持空间的通透感。
▲ 图片来源/ 星瀚设计
沙发背景墙则定制满墙的装饰柜,并穿插敞开、闭合的柜体设计,增添墙面的层次感,同时也能放上摆件,让整个客厅更有些玩味。
▲ 图片来源/ 星瀚设计
▲ 图片来源/ 星瀚设计
在家办公的主要工作区,位在公共场域一角,与客厅维持隔而不断的关系;设计师除运用悬吊式电视柜来区分两个空间,也巧妙使用两种不同的地板材质,形成串连与界定的作用,进而达到视觉上连接两个空间,功能上又是各自独立的效果。
▲ 图片来源/ 星瀚设计
其次,在简约氛围及满足收纳需求的基调下,收整墙面线条,并利用侧墙空间规划收纳柜,既收藏生活物品及书籍,也提供屋主放置工作上所需的文件。
▲ 图片来源/ 星瀚设计
拿掉与厨房之间的隔断,一方面引进自然光线,同时也延伸了视觉空间,进而纾缓了餐厅原本的狭隘感。
▲ 图片来源/ 星瀚设计
▲ 图片来源/ 星瀚设计
去掉繁杂、累赘、浮夸的空间线条,改追求简单、极致的设计;于是,餐厅没有雕梁画栋的布置,运用储物柜收整的墙面,搭配一盏造型吊灯、一组餐桌椅、几幅装饰画,就塑造了干净舒适的空间氛围。
▲ 图片来源/ 星瀚设计
▲ 图片来源/ 星瀚设计
紧贴厨房的房间,屋主觉得视觉上有点突兀,因此运用饰面板收整墙面,一来维持简约利落的空间线条,二是巧妙隐藏居室入口,解决问题。
▲ 图片来源/ 星瀚设计
原本的厨房空间较小,加上有墙与餐厅为界,导致环境显得压抑;为此,拆除隔断以释放空间感,营造通透的氛围,并加装中岛台,除了满足屋主期待的西式感觉,也具备空间界定的作用。
▲ 图片来源/ 星瀚设计
▲ 图片来源/ 星瀚设计
U型的厨房布局,提供最大的使用面积,并以大理石纹砖材布置墙面,为黑白灰的空间增添层次变化。
图片来源/ 星瀚设计
▲ 善用中岛台下方空间规划红酒柜。
不同于公共空间的黑白灰,作为睡眠的卧室以轻浅、温暖的色调为主,并将床头板改用软性材质,搭配米色的几何图形设计,勾勒出安静、舒眠的环境。
▲ 图片来源/ 星瀚设计
图片来源/ 星瀚设计
▲ 床头柜设计延续床头元素。
卫生间以麻灰色砖材塑造低调质感,并以简约装饰营造相对清净的沐浴氛围。
▲ 图片来源/ 星瀚设计
同样是黑白灰的空间,但此案通过洗炼的设计,成功营造低调美感;而且在注重空间呈现的效果之外,也维持了家居该有的生活功能,让极简设计不会沦为好看却不实用的”花瓶”,让身心需求在设计里真正实现。
▲ 图片来源/ 星瀚设计
星瀚设计装饰-是一家集室内设计、施工、软装搭配和售后服务为一条链的专业家装公司。在整体设计上,一向以客户需求为出发点,展开思维,对家的整体搭配及理解上有着很深的见解,家是港湾,是回归,我们在设计上用心追求每一套作品的深度及广度!
▲ 图片来源/ 星瀚设计
99㎡暗挤乱旧房,靠定制家具改造,变温馨三居还多了衣帽间
同样是台灯、落地灯,日本主妇布置技巧万人赞赏,美翻家居各角落
#装修设计# #室内设计##装修案例# #家居设计# #改造#
版权声明:我们致力于保护作者版权,注重分享,被刊用文章【简约思维案例(140)】因无法核实真实出处,未能及时与作者取得联系,或有版权异议的,请联系管理员,我们会立即处理! 部分文章是来自自研大数据AI进行生成,内容摘自(百度百科,百度知道,头条百科,中国民法典,刑法,牛津词典,新华词典,汉语词典,国家院校,科普平台)等数据,内容仅供学习参考,不准确地方联系删除处理!;
工作时间:8:00-18:00
客服电话
电子邮件
beimuxi@protonmail.com
扫码二维码
获取最新动态
