1、
建设地点
江西景德镇
尺 寸
面宽11.4米 进深9.4米
建筑面积
279.0㎡
项目概况
业主宅基地位于江西省,从前期沟通中我们了解到业主比较青睐中式的建筑风格,其宅基地周边的建筑风格并不统一,也没有过多的可借鉴的的设计元素。
基地北侧为一小广场,是村里乡亲们跳广场舞的地方。西侧和南侧距离邻居都比较远,具有较好的采光条件,东侧原有建筑为村中的小商店,业主希望保留其功能,但是提出不需用专门设计,所以我们在设计中仅考虑了小商铺的建筑体量对主体建筑的采光影响。
业主在设计中比较关注防噪音的设计和防水屋面的设计。针对噪音问题我们将休息的空间尽力布置在非小广场一侧的空间上,并建议业主选用65以上的断桥铝窗来阻隔噪音。防水问题我们根据常规做法规范防水材料施工工艺和材料的选择,完全能够解决其顾虑。
图纸设计
该项目属于原拆原建,旧房翻建工程,原有地基就高处院外1米左右,这次设计我们也依据原有地形进行了更细致的设计。
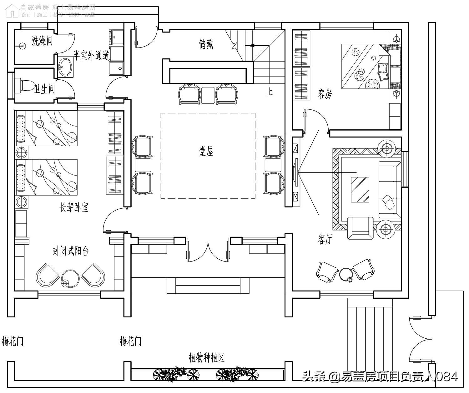
△一层平面图
在一层空间的设计上,根据当地的风俗要保证“上方”的位置,所以我们大堂位置并未考虑其他功能的使用,除了堂屋的功能仅在逢年过节会有摆桌聚餐的需求。业主的父母在经营东侧的小商铺,为了老人的起居方便我们也将老人的居住空间放在了一层,厨房更是设置了两个出入口,满足日常经营店铺的就餐需要。另外在一层布置了杂物间,满足生活起居杂物存放的需求。
在我们与业主沟通后,确立了"U"型楼梯的布置,楼梯间显得更加开敞。
△二层平面图
二层主要满足业主两个妹妹和自己的居住需求,我们设计了三间卧室以及一间书房,起居室的空间也被布置在二层。
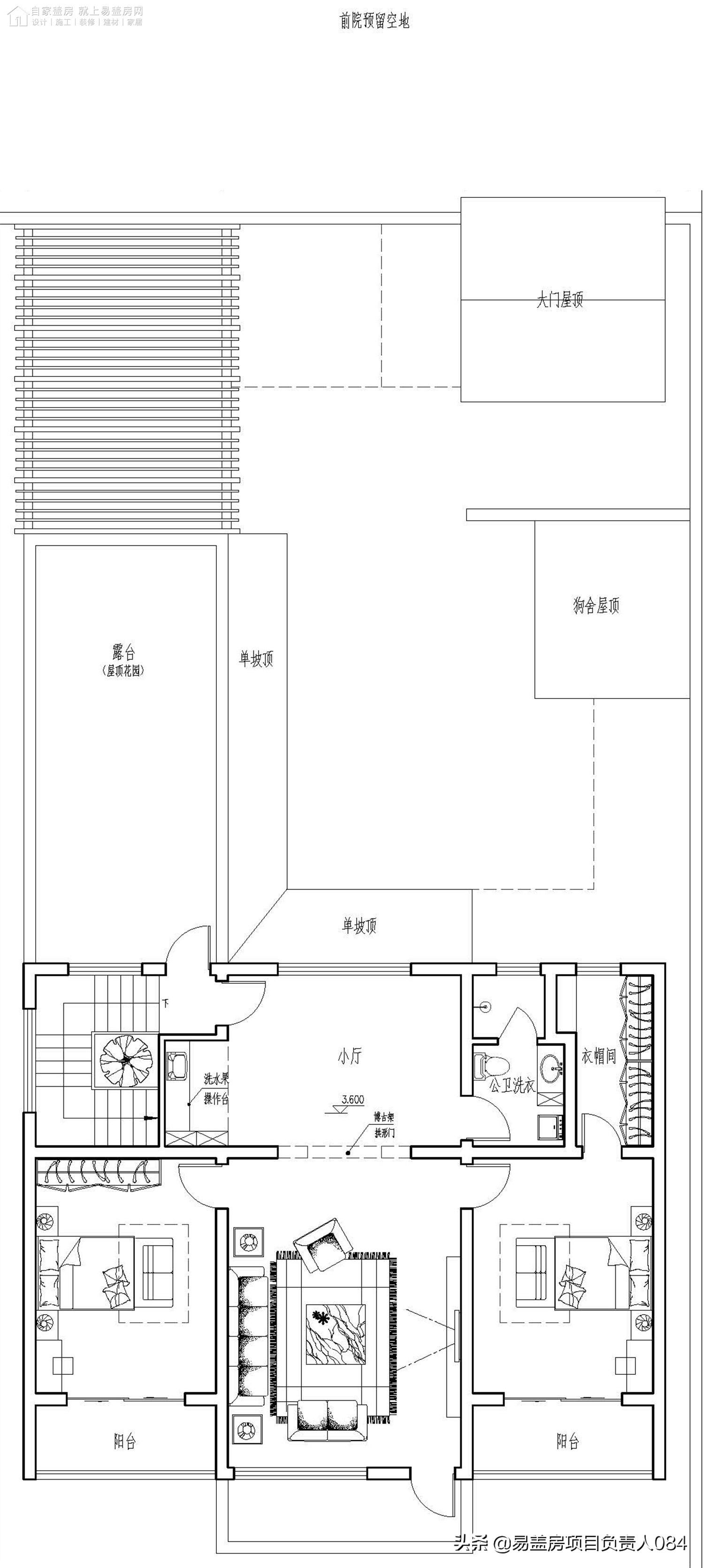
△三层平面图
另外在三层我们设计了两间卧室,三层的室外露台与小商铺的二层屋顶连为一体,扩大了露台面积。
在建筑风格上,我们使用了比较经典的一些中式元素,在门窗上我们选择了偏向深木色的材质,使用适当的的花格装饰,凸显中式的特色。
造型设计
在建筑风格上,我们使用了比较经典的一些中式元素,在门窗上我们选择了偏向深木色的材质,使用适当的的花格装饰,凸显中式的特色。
△鸟瞰图
在立面的材质上我们选择了真石漆。
△鸟瞰图
△鸟瞰图
屋顶我们设计了“L”型的整体格局,与建筑整体相协调。
△入口效果图
△庭院效果图
△庭院效果图
△庭院效果图
△停车位效果图
△露台效果图
2、
建设地点
山东菏泽
尺 寸
面宽13.4米 进深10.5米
建筑面积
326.0㎡
项目概况
△总平面示意图
项目位于山东,建筑占地约为130平米。基地东侧是胡同小路,西、南、北三侧都与邻居家住宅紧邻。由于建筑三侧均有邻居家住宅遮挡且北侧无法开窗,因此平面设计需要解决室内采光的问题。
图纸设计
△一层平面图
建筑位于基地北侧,南侧预留庭院,使得室内能够依靠南侧采光。为了解决室内北侧无法开窗问题,贯通空间均没有遮挡,让光照可以从南侧进入室内并抵达北侧空间。
玄关为室内很大的采光区域,因此餐厅依靠玄关进行采光。同时西侧向内退让部分空间作为过道,让房间可以拥有西侧窗户。
一层主卧位于东南角,配有独立衣帽间。较好方位让居住环境得到保证。客厅、餐厅、厨房以及棋牌室等功能作为日常需求,布置在一层。
△二层平面图
考虑到采光问题,二层休闲区选用大面积玻璃直接采光,让起居室能有充足光照。书房与起居室相邻,依靠东侧通风和采光。
整层共有三间卧室,南侧为主卧,面积较大。西北角卧室为次卧,与公卫相邻,日常使用方便。
△阁楼平面图
阁楼设计小型茶座,较为安静的空间十分适合自己一个人静坐品茶。东侧大面积露台则是室外观景和活动区域。
造型设计
△鸟瞰图
建筑整体为现代风格,颜色方面选择白色作为主色,在窗户以及阳台等位置利用木装饰和深色条纹勾勒出建筑轮廓和空间分界。
△鸟瞰图
二层南向卧室均有阳台设计,玻璃围栏配合大面积落地窗让此处立面视觉上十分通透。窗檐位置的细节处理不仅利于排水,也让建筑更为立体。
△鸟瞰图
阁楼部分屋顶选择双坡屋顶,坡度较缓。搭配顶层女儿墙的弧形设计,增加空间层次感。屋顶上方天窗为阁楼室内带来更多采光,也让屋顶在鸟瞰角度有了更多变化。
△鸟瞰图
△庭院效果图
△庭院效果图
庭院根据区域划分,客厅与室外平台相邻,利用二层阳台形成小型雨棚,为平台提供更好环境。卧室一侧则选择石桌石椅形成另一种风格,让庭院整体更加丰富。
△阁楼效果图
△东立面图
△西立面图
3、
建设地点
北京密云
尺 寸
面宽17.0米 进深16.8米
建筑面积
156.0㎡
项目概况
业主想在密云做一个独一无二的民宿,房子是从当地人家租赁而来,由于参观过许多成功的民宿案例,甲方对于民宿风格有一定的理解和把握,建筑风格以简约为主导,材质则选用新旧强烈对比,老房子拆掉之后的材料要在新建筑中使用,受“漂亮的房子”影响,业主希望有一个屋顶做一个浅水池,浅水池边则是人们休闲活动区域,废弃的仓库可用作设备间,屋顶则做成公共空间的露台,为来此居住的人提供尽可能多的室外活动空间;
基地情况
该项目位于北京密云,场地规模17*16.8m。场地现状有1.6m的高差,在原有的基地上翻盖。房子的北侧是村路,要比场地高3m左右,所以建筑北侧不能开窗。场地内的一棵老树和院子的围墙在设计的时候要予以保留。
效果展示
项目主要是做民宿使用,民宿与自然环境相互依存,生机勃勃。建筑主体为简约设计,但是简约却不简单,外立面采用白墙做粉刷,一面采用坡屋顶设计,每一处房间都有自己独特的特色,北边一角是一处阳光房的设计,中间设有小露台,一方面使得室内采光充足,另一方面透过天窗看夜晚的星空更加浪漫,让居住的客人体验感更好,另一侧则是带有飘窗的卧室,飘窗的下面设计了一个小型水池,清水流动,生机盎然;
△鸟瞰图
本设计在合理布置功能空间的同时,又别出心裁的设计了后院的出口,方便客人的出行,利用地势落差,设计露台和草地来作为休息闲谈观景使用;
△人视效果图
△人视效果图
△人视效果图
落差处设有仓库,可以储存一些民宿经营需要品、杂物以及空气源热泵室外机;
△人视效果图
影壁前院摆放沙发,供客人在此沐浴着阳光聊天、喝茶,拥有惬意的度假时光;
△阳台效果图
落地窗面向庭院打开,将美好景色引入室内。也丰富了建筑立面。使用的大多数材料都是从旧宅回收的老木料、老门窗。中心庭院里设草坪、添木踏、置繁花,让精致小景愉悦客人的心情;
△庭院效果图
登上顶层阳台,作为客人的空中休闲观景之地,设有桌椅,喝茶小憩之地,潺潺流水在侧流淌
△庭院效果图
图纸中心
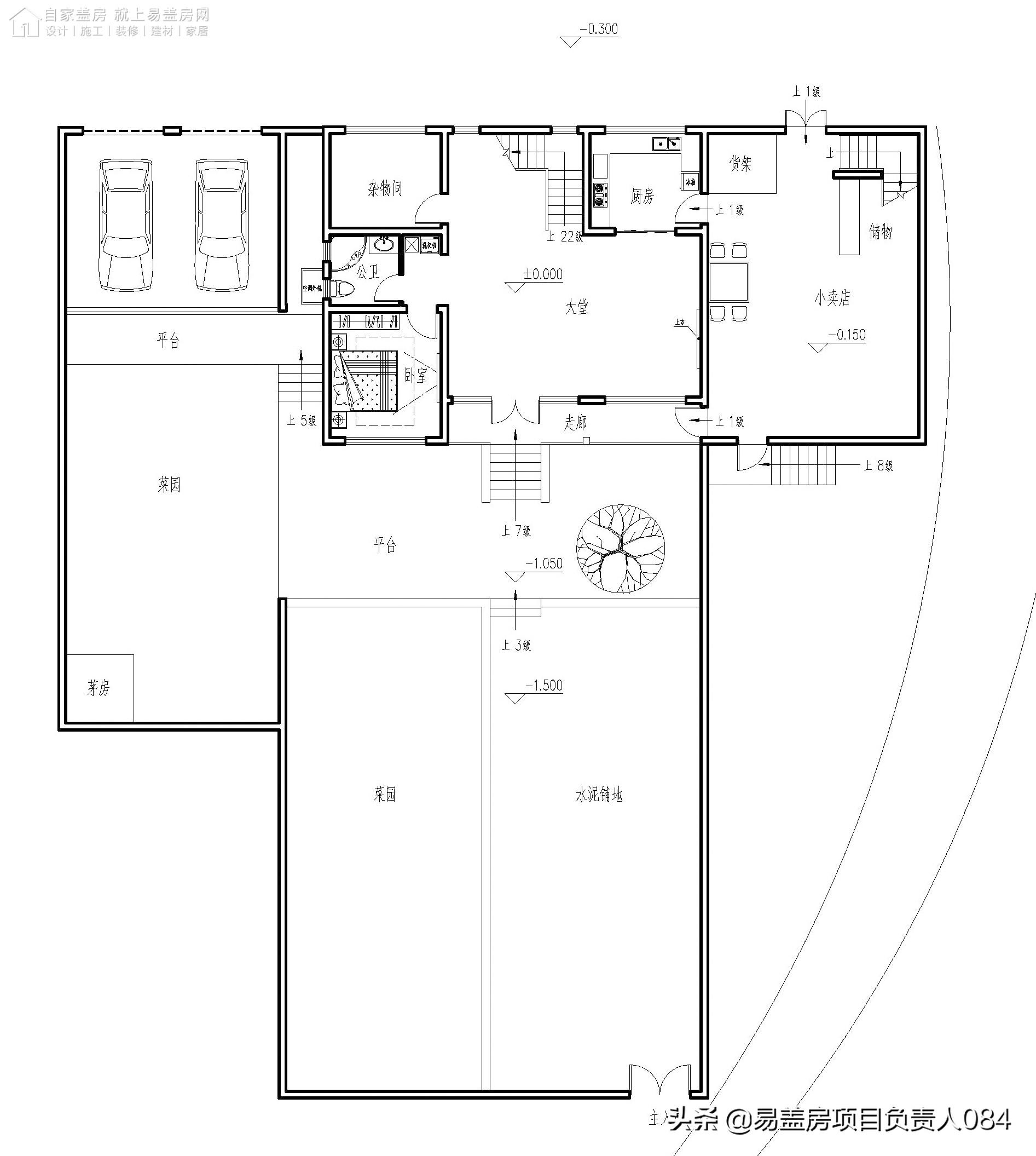
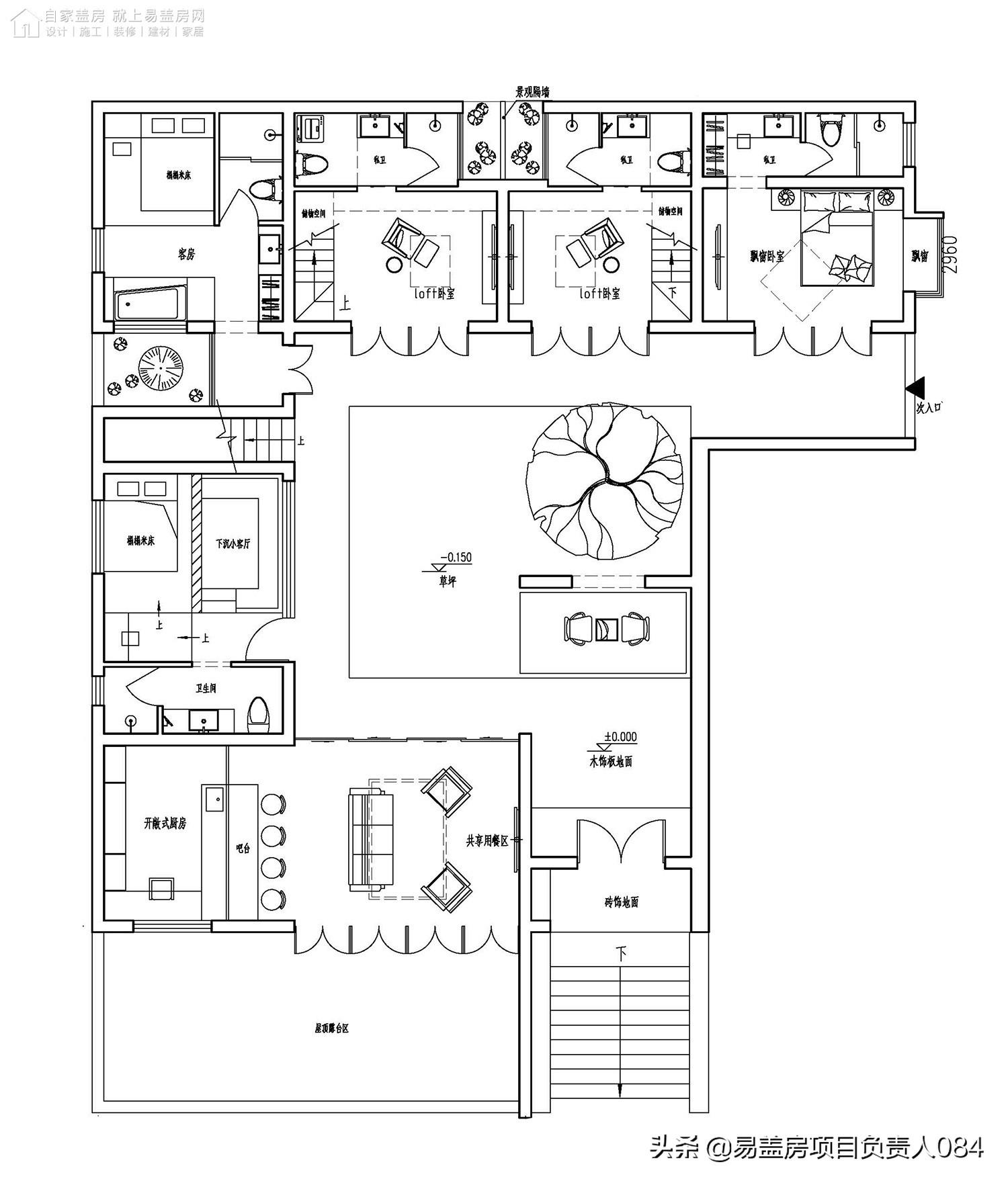
民宿一层设有5处居住室,两处房间设有榻榻米,一处榻榻米为阳光房设计,是居住更加舒适,中间设有两处LOFT,一层设有一处双人床,带有独卫,楼上同设有一处双人床,带有天窗,浪漫啊~剩下一处设有双人床,设有飘窗,可以躺在飘窗上看风景,真是享受;南面设有厨房、餐厅和吧台,方便客人的饮食;
△一层平面图
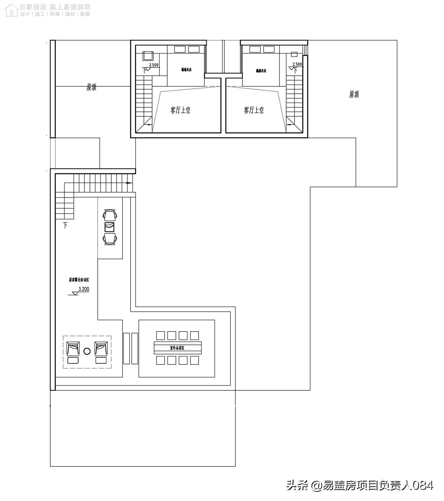
△二层平面图
△南立面图
△北立面图
△东立面图
△西立面图
4、
建设地点
海南琼海
尺 寸
面宽13.4米 进深9.2米
建筑面积
221.0㎡
项目概况
△总平面示意图
基地情况:
东:村内道路
南:邻家住宅
西:空旷田地
北:邻家住宅
项目简介:
业主在项目前期提出的平面布局要求清晰明确,并提供了平面示意图供设计师参考;同时,业主对于立面效果也有十分明确的意向,并在易盖房图库中挑选了自己钟意的效果图与设计师沟通。设计师根据业主的需求和喜好,将建筑形式确定为南北朝向的二层新中式别墅,通过东南侧庭院门与道路连接。
平面布局
户型概况:
2层 / 5室 1厅 1堂屋 2卫 1网吧 1露台
△一层平面图
项目建设于基地宅院内,通过建筑将庭院划分为南北两部分(前院与后院)。建筑整体平面采用三开间形式,由于业主本身在后院建有独立餐厨空间,因此项目并未设计餐厨功能。建筑通过踏步架高整体高度,北侧同过半室外通道连接后院,充分契合当地生活习惯。
△二层平面图
由于一层中间堂屋部分采用通高设计,因此二层中庭部分设计为镂空形式,北侧楼梯区域旁则设置上网区,丰富室内的娱乐休闲功能。晾晒阳台采用开放式设计,搭配盥洗功能,大大方便了日常家务使用。
造型设计
△鸟瞰图
△鸟瞰图
建筑整体为新中式风格,材质方面,屋顶部分选用灰瓦铺贴,屋脊部分采用简洁化设计,未作过多装饰;立面中采用白色真石漆与米黄色文化石划分垂直空间;窗框选用木包铝,兼顾实用性与装饰性。
△鸟瞰图
建筑四面开窗面积均偏保守,这样的设计可在一定程度上改善高温地区的气候影响,减少一部分室内热负荷。
△鸟瞰图
建筑与庭院整体性极佳,前院部分设置三道门将整体设计为三进院的形式,风水上佳的同时也与建筑的开间形式形成良好的契合度。
△鸟瞰图
建筑北侧立面设置半开放空间与后院形成过渡,开放式的门框采用木材进行装饰,搭配二层中式栏杆,使建筑的整体视觉感受更加丰富。
△东立面图
△西立面图
△南立面图
△北立面图
5、
建设地点
河南漯河
尺 寸
面宽14.0米 进深19.2米
建筑面积
322.0㎡
项目概况
△总平面示意图
项目位于河南,基地东、西、南三侧均为邻居家住宅,北侧为村内一条小路。根据场地情况,建筑选择北侧入户。
住惯了城市里的楼房,业主回到家乡就是想享受带有庭院采菊南山的生活,因此建筑选择新中式风格。
图纸设计
△一层平面图
建筑主体以主房和厢房组合形式出现,主房前方预留大面积玄关空间,使得室内外过渡更加自然。玄关两侧分别为公卫和楼梯间以及设备间。
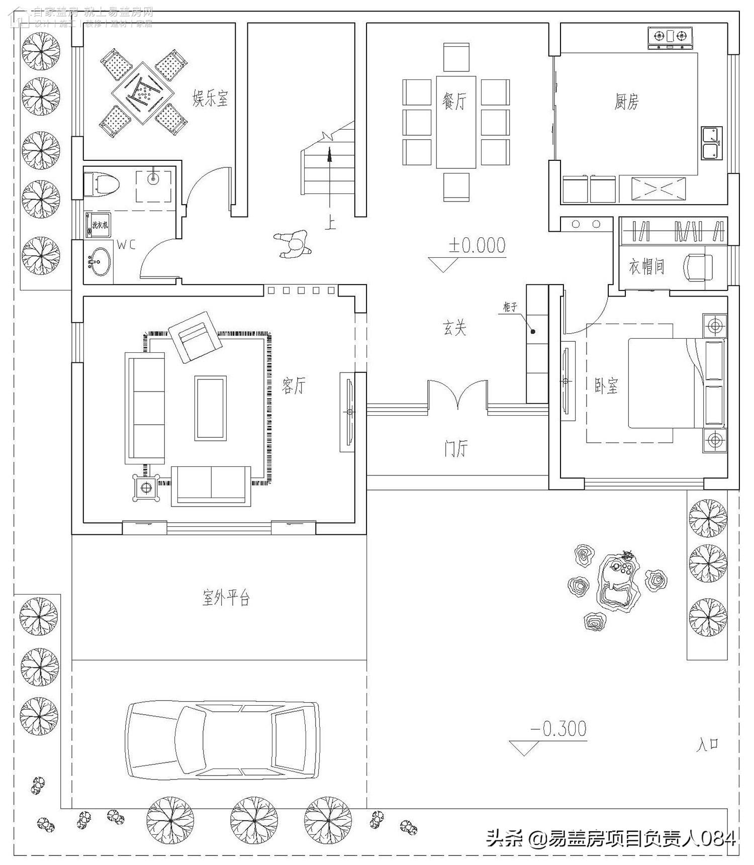
主房为三开间形式,客厅位于中间,两侧为卧室,东侧卧室配有独立衣帽间。建筑南侧为景观庭院,从客厅可直接前往庭院。卧室配有室内阳台,保证室内拥有较好观景地点。
厢房为厨房和餐厅,厨房采用开敞式设计,使得餐厅能容纳较多人同时用餐。
△二层平面图
厢房为平屋顶,屋顶直接用作露台,通过楼梯间与室内进行交流。二层和一层之间的一道门让二层空间更为私密。
二层布局与一层基本一致,卧室南侧配有阳台,增加室外活动空间。
造型设计
△鸟瞰图
建筑整体为新中式风格,主体采用建材商城内优质真石漆,踢脚线位置选用灰色真石漆。白色主体与灰瓦搭配,如同一副精美水墨画,在周边秀丽风景中静静展现自身意境。
△鸟瞰图
建筑选择木包铝门窗,色彩美观。同时选择自建材商城的门窗隔热保温性能极好,后续施工也极为便利。
走廊位置选择单坡顶,考虑到夏季雨水对阳台和门窗的影响,南侧阳台上空增加雨棚,形成一个较为舒服的观景场所。
△鸟瞰图
一层南侧客厅外选用雨棚的处理手法,使得出入景观庭院空间自然形成一个门厅。如此设计让建筑整体主次分明,也富有节奏感。
△鸟瞰图
△鸟瞰图
北侧院门后方利用影壁遮挡庭院,影壁旁边空间为一汪清池,极具仪式感的门楼后景致精美,从进门处奠定了庭院整体基调。
△入院效果图
△东立面图
△西立面图
△南立面图
△北立面图
6、
建设地点
北京顺义
尺 寸
面宽14.8米 进深14.0米
建筑面积
276.0㎡
项目概况
该项目业主拥有一家对外贸易企业,所以业主经常出差世界各地,生活居住要求较高。另外业主的这栋房子希望是平时周末以及节假日休闲度假用,并不用来常住。业主在国外接触了很多的建筑风格,但是最终还是比较中意传统四合院的感觉,但由于四合院不符合现代起居的众多要求,于是我们借鉴了四合院的众多中式元素,设计了更加符合业主心中预期的新中式建筑。
△总平面示意图
该建筑基地位于北京市顺义区,基地北侧为车行道路,东侧为人行道路,南侧和西侧紧邻邻居两层的住房。为了保证房屋南侧的采光,我们将院落布置在基地的南侧,让建筑与邻居住房拉开距离,获取更多的采光,另外将建筑设计为接近U字型的布局,预留了一个小庭院,这样使得北端的卧室也能有南向采光。
图纸设计
在平面户型设计上我们首先根据地形情况设立了院落入口,因为考虑道路的便捷性我们优先考虑在北侧和东侧设立入口,而传统四合院中东南入口在风水上为上佳,故将入口设立于东南角。
△一层平面图
由于场地东西向长14米,所以将主要功能设置在东西两侧的条件充裕,而为了让主要空间能得到更多的采光,所以我们将对采光要求不高的门厅,走廊等设置在中部。另外在一层我们根据业主需求设计了双车位的车库,巧妙设置了步入内庭院照料植物的入口,而这个内庭院的植物不仅起到一定的遮挡隐私作用,而且业主备餐或者洗漱中还能欣赏内院景色。
△二层平面图
二层的布置与一层相对位,这样在结构层面上会节约成本,设备安装也比较便利,我们将一层客卫上空设计为二层卧室内的卫生间,这样更加方便使用。而二层南侧中间的房屋为多功能用房,布置可隐藏式床铺,平日更多是以书房形式布置。
最后我们将一层客厅上空位置留作为屋顶露台,这个室外露台亦可以感受到充分的南向采光,满足休闲度假别墅的使用需求。
造型设计
造型上我们在了解业主的需求以后,结合经典的四合院的元素让建筑不仅展现出了现代建筑的灵动,还保留了传统建筑的风韵。
△鸟瞰图
建筑立面用色以灰色,白色,木色为主,保留了传统建筑较为素雅的整体感官。
△鸟瞰图
屋顶选用北京四合院常用的卷棚顶,覆以灰瓦,外墙面施以白色真石漆,窗框和门等使用木色的暖色调,使得整个建筑更加亲切和谐。
△鸟瞰图
整个建筑因为是局部二层,所以显得轻盈灵活,建筑关系协调美观。
△鸟瞰图
△庭院效果图
入口处我们借鉴了日式建筑精细的布局形式,并刻上门牌“春风习习”
△庭院效果图
圆形窗洞以及宝瓶门都是传统中式园林中常见的设计元素,我们也将此与整个建筑有机的结合在了一起。
△庭院效果图
北侧庭院较小,主要被用作茶室的景观面和一层主卧圆窗的对景。
△西立面
△东立面
围墙和入口我们延续了建筑白色主基调,灰色的檐口彰显的中式建筑的稳重清雅,木门和绿植等细节的搭配保证了建筑的高品位格调。
△南立面
△北立面
版权声明:我们致力于保护作者版权,注重分享,被刊用文章【新中式别墅设计案例(给大家推荐6套新中式别墅案例)】因无法核实真实出处,未能及时与作者取得联系,或有版权异议的,请联系管理员,我们会立即处理! 部分文章是来自自研大数据AI进行生成,内容摘自(百度百科,百度知道,头条百科,中国民法典,刑法,牛津词典,新华词典,汉语词典,国家院校,科普平台)等数据,内容仅供学习参考,不准确地方联系删除处理!;
工作时间:8:00-18:00
客服电话
电子邮件
beimuxi@protonmail.com
扫码二维码
获取最新动态
