实际上根本没有艺术其物,只有艺术家
— E·H·.Gombrich
艺术随着时代更迭被不断刷新概念,在当下最具生命力与创造力的Z世代眼中,艺术不再是晦涩难懂的概念或痛苦面具,而变得更为具体和日常。在关注自我行为的表达中,找到个体发展与群体认同感的平衡点。
Z世代群体渴望自我表达得到快速的回应,收获群体的关注与追捧。在流媒体迅捷发展的今天,对于新奇事物的关注也让他们成为最先捕捉潮流动向的群体。
消费群体的喜好和观念深深影响着品牌的商业发展,向着更细微的生活方式与场景体验更深度的推进,也反映着社会新中坚力量的价值崛起。设计便是将这种最细微的变化放大,通过多维场景变化与商业诉求充分融合,构建具有持续生长力的品牌发展曲线。
项目位于杭州市湖滨步行街的核心,以“宇宙中心”的姿态闻名于世。周边国际奢侈品牌店铺和潮玩店铺林立,早已成为本地年轻潮人与游客最为密集的复合潮流街区。
一层入口设置在人流量最大的奢侈品橱窗旁,强化群体对于 LAVIES 的关注。而二层的入口将极具张力的绿色与室内的玫红结合,色彩的碰撞和多媒体循环播放的slogan,将品牌个性鲜明的时尚态度演绎的淋漓尽致。
在如此浓郁的商业文化氛围中,仅仅凭借抓人眼球的视觉传达无法充分体现品牌的核心理念。一展设计团队在设计构思之初,将目光聚焦在消费群体生活方式与场域可能性的探讨上,赋予空间更多的话题性和参与感。
LAVIES覆盖主体建筑的一至六层,一展设计以无边界艺术场景贯穿整个项目,结合区位优势的自带话题属性,富有艺术张力和充满洞察的空间,给进入其中的每个个体,带来直指灵魂的强烈感受。
一展设计选择以“艺术发生场”为 LAIVIES 的叙事蓝本,聚焦当下Z世代群体的消费理念与生活方式,在唤起情绪共鸣的同时构建全时段多触点场景链接。通过多元的灯光氛围、艺术展陈与互动装置构成社交灰空间的恰度融合,搭建与消费者更强的情感纽带。
贯穿空间的艺术画廊取名为“Lucky Gallery”,设计师试图创造一种新的“非同质化社交场域”。在手机主宰我们日常生活的今天,打破空间与时间的界限,丰富的沉浸式场景提供了可被感知的情绪体验,营造一个超现实又极具未来性的艺术发生场。
一展设计想要通过数字化的动线和极富波普主义的空间主题探讨,实现群体对于“FEEL ALIVE”(感觉活着)即时感的延迟满足。
内部高显色的幻彩灯光形成了空间强烈的对冲:热烈或冷静,传递出更先锋的艺术表达。以深度感知、联觉的“元宇宙”概念,扩展了行为艺术的可能性,如同置身于自由的梦境里等待探索与被探索。
相比于创意画廊的艺术界面,吧池的入口空间亦虚亦实更是暗藏玄机,顶部绵延漂浮的曲面造型,拾阶而上以连廊界面延伸的LED屏,结合抽象的艺术装置在多媒体快闪的形态下将越夜越野的情绪无限渲染。
“KEEP ON DANCING MUSIC IS THE ANSWER ”,旗帜鲜明的表明了LAVIES 品牌对于现代人生活态度的深度理解:没有什么是艺术和音乐解决不了的。而这种观念的阐释,也正是设计团队对于LAVIES 品牌基因的深入了解与赋能手段。
依托于对品牌行业的现状深度了解,打破单一的空间服务模式。 一展设计提出了“全时段体验”的空间场景模式,结合不同时段的场景需求将空间分类规划同一建筑体内,解决转场的舟车劳顿。将以此引发人群集聚效应,打造一个具有综合功能的“社交反应堆”。
LAVIES三层为独立的静吧区域,为餐后转场的尴尬时段提供了过渡场所。硬面介质和高饱和的灯光色彩,在低照度的场景氛围里,以 Disco & Funk 渲染放松的氛围,营造恢复、舒缓安静的空间气质。
二层主舞池颠覆常规的灯光矩阵,以定制动能照明装置可以与现场音乐同步变换形状和色彩,对空间不同时段进行重塑和重新着色,沉浸式氛围从而增强夜店神秘的感官体验。
一展设计结合品牌运营需求,将原有空间充分解构重组,三个层次的“U”型动线结构相互嵌套,呈现出26个不同规格的卡座与独立吧。轻巧的设计艺术和动感的视听定位结构,突破了娱乐、艺术和技术之间的隔阂,塑造了令人振奋的狂欢场域。
舞池的喧闹需要一个平和缓冲的过渡地带,而盥洗区域的艺术构成则为这种脱力后找到了恰当的空间。
而充满未来感和趣味性的灰空间也将“深夜社交”从舞池的迷幻浪漫回归到理性的界面,从初见乍欢到久处不厌,使良性社交线索得以延续。
社交场景需要公共场域的落落大方,也需要更为私密内敛的一方天地。设计师将建筑的五、六层依托层高的优势,构建了五个各具特色的私密包厢,为消费者的多元需求提供了更多可能性。
在满足商务社交与会友的场景需求之外,设计结合建筑原有的形态,以借景的手法从不同维度将西湖山水绝美的景致引入室内,不突兀也不造作,也充分表达了人与自然和谐共生的设计理念。
留白作为设计常用的手法之一,在满足多元个性需求的同时,在不同空间辅以经典娱乐项目:台球和K歌功能,实现商务、聚会等多种功能需求之间自由切换。
不同空间的软装陈设元素,令紧绷的神经在这里得到松弛,实现空灵疗愈的心流体验。也更加贴合饭后餍足的身体感受,为稍后午夜的纵情玩乐注入能量。
LAVIES模式的成功,映射了当代娱乐产业变革的微小缩影。形式主义逐渐退潮,设计由外在的喧嚣回归理性的深度精研,对于品牌的商业赋能,也是一展设计与品牌惺惺相惜的初衷。
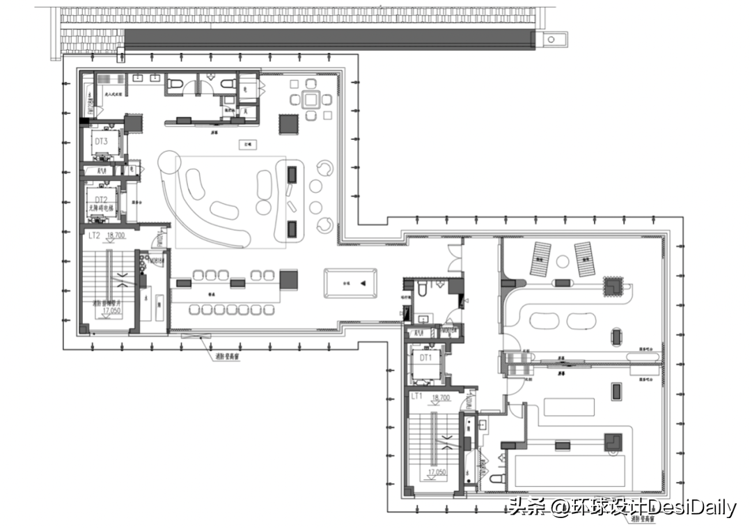
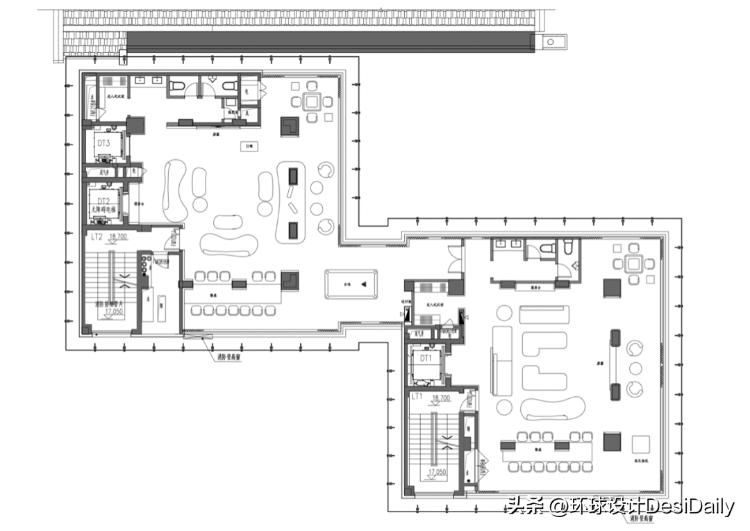
△1层东入口
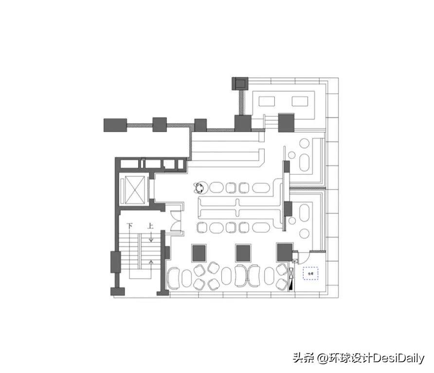
△三层平面图
△三层夹层平面图
△五层平面图
△六层平面图
项目名称|LAVIES
项目地点|中国 杭州
竣工时间|2022.5
项目类型|酒吧空间
设计单位|杭州一展室内设计有限公司
主创设计|肖懿展
设计团队|王鹏飞、毛建雄、陈利亚、张来建、王忠天、黄勇
软装设计|肖懿展、王鹏飞、汪骏龙
灯光顾问|杭州乐翰照明设计工程有限公司
项目摄影|瀚墨摄影-小四、周和、徐金宝
肖懿展
一展设计创始人 & 主持设计师
一展设计位于杭州,项目包括住宅/商业及餐饮空间,设计理念围绕以人的感官需求为核心,希望通过材质、色彩、灯光、声音、气味唤醒人与空间的互动体验。多年设计实践深度研究及挖掘场地的独特性,转换为空间的独特性,以简练去风格化的手法创造新的空间关系。
部分案例
▽
△HOW DEPARTMENT杭州买手店
△莲伴堂
△练金术
推荐阅读
▽
上海第二家蓝瓶咖啡旗舰店开业。
少即是多。
自然归隐
温暖治愈
独家首发,未经授权,严禁转载,欢迎转发至朋友圈。
更多精彩请关注
▽
版权声明:我们致力于保护作者版权,注重分享,被刊用文章【酒吧设计案例(首发)】因无法核实真实出处,未能及时与作者取得联系,或有版权异议的,请联系管理员,我们会立即处理! 部分文章是来自自研大数据AI进行生成,内容摘自(百度百科,百度知道,头条百科,中国民法典,刑法,牛津词典,新华词典,汉语词典,国家院校,科普平台)等数据,内容仅供学习参考,不准确地方联系删除处理!;
工作时间:8:00-18:00
客服电话
电子邮件
beimuxi@protonmail.com
扫码二维码
获取最新动态
