小户型最实用的空间“榨干术”,全在这套60㎡的小家里了!
房子小,人口多,每个人都要有独立的生活空间,听到这种情况就忍不住要皱眉头。
本期女主就面临这样的问题,她和姐姐都刚参加工作不久,原本是和母亲一起住在郊区老家,但奈何老房子要拆迁,一家三口便决定在市里买套新房。
手头预算有限,买不了太大的户型,只能退而求其次选了一套60㎡的房子。为了让每个人都拥有属于自己的小天地,她们找来了设计师做改造,最终一居变三室,还有超强储物空间。下面,就让我们一起参观下她们的新家吧!
▲装修实拍图
设计亮点
整屋面积约60㎡,原户型是一居室。房子的净层高达到了3.3米,设计师借助层高的优势,隔出了二楼空间,重点改造设计如下:
①一楼规划玄关、客厅、开放式餐厨、阅读区、卫生间和长辈房,女主母亲的卧室在一楼,对于腿脚不便的老年人来说很友好。
②客厅和餐厨做了挑空处理,保留了原始层高,其余区域的上方增设了二楼夹层。
▲一楼装修平面图
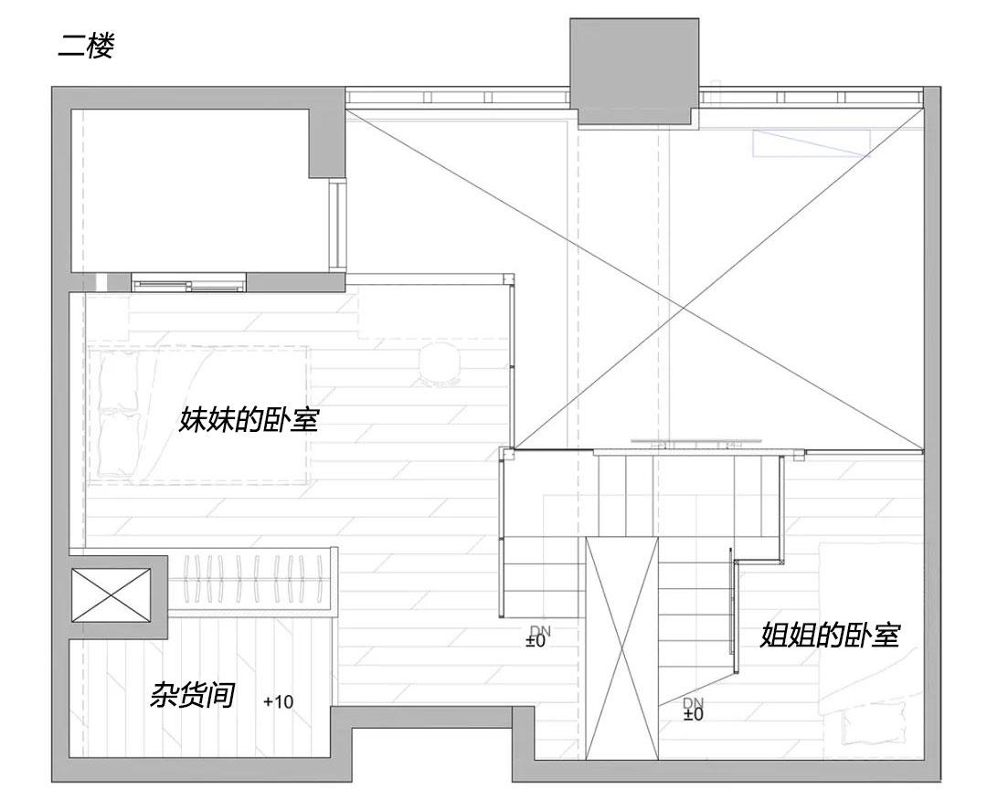
③二楼规划了两间卧室,分别是女主和女主姐姐的房间,彼此独立、互不打扰。
④卫生间的上方空间,改造成了杂货间,统一收纳不常用的生活用品。
▲二楼装修平面图
玄关
入户门正对着开放式餐厨,为了提升私密性,设计师沿着橱柜定做了白色栅栏屏风,既能遮挡一部分入户视线,又不会影响室内采光,还可以起到装饰空间的作用。
玄关地面铺了浅灰色的大理石地砖,自然形成落尘区,并与客厅的木地板完美衔接。
▲玄关实拍图
玄关右侧规划了鞋柜和全身镜,均是沿着楼梯定制的,将有限的空间合理地利用了起来。
鞋柜分为两个部分,左侧鞋柜带有柜门,用来收纳一家人过季的鞋子;右侧鞋柜是开放式柜格,按照楼梯踏步形成阶梯式布局,用来放常穿的鞋子。
▲玄关实拍图
客厅
客厅做了挑空处理,一是为了保证室内的采光和空间感,二是因为它带有一道大梁不能拆除,保持现有的层高也能消除横梁的压抑感。
照明采用了水晶灯、筒灯和射灯的组合形式,将横梁与墙面都利用了起来,让客厅显得敞亮开阔。
▲客厅装修前后对比图
双人位沙发靠墙摆放,搭配两张木质钢架角几,简约之中带着一份高级感。
一侧墙面用60cm*80cm的单幅壁画做点缀,射灯刚好照在画面中心,呈现出满满的艺术气息。
▲客厅实拍图
电视背景墙是新增的墙体,沿着楼梯展开,底部错位形成了开放式收纳格,可搭配储物盒使用,轻松收纳路由器、机顶盒等物品。
▲客厅实拍图
墙面向前延伸,可以看到一个小型壁龛,既填补了楼梯平台下悬空的区域,又能提升室内的储物能力,一举两得!
▲客厅实拍图
餐厨
餐厅和厨房在同一个空间内,做了开放式的布局,可以与客厅共享采光。
淡蓝色的橱柜,搭配奶油色的中岛餐桌,配色淡雅治愈,呈现出干净清爽的烹饪、用餐环境。
▲c'c实拍图
阅读区
一楼楼梯入口的旁边有一个小空间,原本是闲置的状态,现在被设计师改造成了阅读区。
内部布置了休闲椅,书柜则处于楼梯的侧面,和前文提到的玄关鞋柜是背对背的结构,设计得太巧妙了!
▲阅读区实拍图
楼梯
楼梯的设计非常巧妙,除了前文提到了柜体外,还有很多人性化设计。
照明采用了隐藏式灯带,嵌入在侧面墙壁上,让狭小的空间变得更加敞亮。
▲楼梯实拍图
二楼两间卧室,分别通过两个独立的楼梯抵达,互不影响。
▲楼梯实拍图
楼梯侧面增加了壁龛式衣柜,内嵌感应灯带,搭配木质移门,大大提升了室内的储物能力。
▲楼梯实拍图
姐姐的卧室
拾级而上,来到女主姐姐的卧室,一盏壁灯点亮了温暖的空间。
墙面刷了淡淡的蓝色乳胶漆,天花板不做吊顶,侧墙引入双面衣柜,让小空间也能拥有完备的功能性。
白色网状栏杆,既保证了居住的安全性,又能起到一定的装饰作用。
▲姐姐的卧室实拍图
女主的卧室
二楼的另一侧,是女主的卧室,面积稍微比姐姐的房间大一点。
卧室隔壁是杂物间,设计师用柜体做分隔,并通过壁灯和灯带来提升二楼的照明。
▲女主的卧室实拍图
女主的这间卧室,床头原本是有一道大梁,为了减少突兀感,设计师将床头向前拉伸,重塑方正轮廓。
床头墙面刷了浅橘粉色的乳胶漆,是女主最喜欢的颜色,给人一种俏皮可爱的感觉。
▲女主的卧室实拍图
室内角落规划了“书桌+书柜”的组合,可办公、可梳妆,非常实用。
▲女主的卧室实拍图
【本期总结】
看完本期案例,真心佩服设计师的水平,让有限的空间发挥出最大的作用,同时兼顾了实用性和舒适性。最打动人心的,当属楼梯区域的设计,多种柜体并存,值得借鉴!如果你也喜欢本期内容,欢迎点赞收藏!
想了解更多精彩内容,快来关注甜茶的极简生活
版权声明:我们致力于保护作者版权,注重分享,被刊用文章【60平米老房子装修案例(她家仅60)】因无法核实真实出处,未能及时与作者取得联系,或有版权异议的,请联系管理员,我们会立即处理! 部分文章是来自自研大数据AI进行生成,内容摘自(百度百科,百度知道,头条百科,中国民法典,刑法,牛津词典,新华词典,汉语词典,国家院校,科普平台)等数据,内容仅供学习参考,不准确地方联系删除处理!;
工作时间:8:00-18:00
客服电话
电子邮件
beimuxi@protonmail.com
扫码二维码
获取最新动态
