首页
教育资讯
学习方法
公务员考试
院校大全
知识库
首页
/
中央美术学院燕郊校区
中央美术学院燕郊校区(艺术圣地)
中央美术学院是国内所有美术生心中的“殿堂级校园”。百年发展1918年4月,中央美术学院的前身——国立北京美术学校——在著名教育家蔡元培的积极倡导下创立,这是中国历史上第一所由国家开办的美术学府,代表了国家和民族对美术教育重要地位的确立。1938年4月在延安创立的鲁迅
时间:2025-07-29 | 阅读:919
中央美术学院燕郊校区(美术高校)
中央美术地址:北京市朝阳区花家地南街8号官方网站:http://www.cafa.edu.cn/院校简介:中央美术学院是中华人民共和国教育部直属的唯一一所高等美术学校。现设有中国画-学院、造型学院、 设计学院、建筑学院、人文学院、城市设计学院、实验艺术学院、艺术管理与教育学院八个专
时间:2025-07-19 | 阅读:256
中央美术学院燕郊校区(建筑案例欣赏)
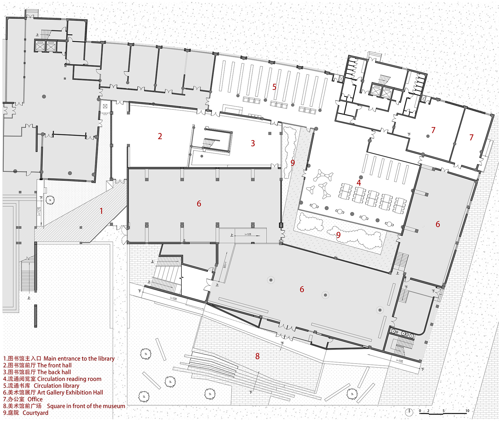
这个项目是中央美术学院燕郊校区的老图书馆,前身是中央美院附中的图书馆,06年中央美院正式入驻,教师和学生的数量逐渐增多,因此图书馆经年累月的的问题也逐渐显露。比如入口隐蔽,两层不能互通,天花地面多年失修,照明不足,总之图书馆经过这么多年的风吹雨打,已经老态龙
时间:2025-07-18 | 阅读:953
全面的学校信息库
院校搜的目标不仅是为用户提供数据和信息,更是成为每一位学子梦想实现的桥梁。我们相信,通过准确的信息与专业的指导,每一位学子都能找到属于自己的教育之路,迈向成功的未来。助力每一个梦想,实现更美好的未来!
文章
2178095
标签
159354
浏览量
100W+
阅读排行
7579℃
1
2022年陕西交通职业技术学...
7272℃
2
2023年面向港澳台地区招收...
6874℃
3
重庆2023年开设汽车运用与...
6223℃
4
2020甘肃高考一本I段投档最...
5685℃
5
福建省二本的文科大学排名
5652℃
6
眉山药科职业学院是民办大...
5625℃
7
南京传媒学院奖助学金有哪...
5473℃
8
英语教育考研难吗?
猜你喜欢
北京中医药大学东方学院2019年招生章程
湖南有哪些双一流大学
上海师范大学天华学院是民办大学还是公办大学
婚姻法司法解释三(法谈婚姻)
沈阳农业大学和山东农业大学哪个好
初中生叛逆家长管不了怎么办
国家一等助学金多少钱
广西有哪些大学开设投资学专业
北京理工大学国际教育学院是985吗
商洛职业技术学院怎样
考上首经贸意味着什么
2023年国考面试公告发布后多久面试
热门标签
985
综合类院校
工科类院校
师范类院校
艺术类院校
财经类院校
高仿手表哪里可以买到
农业类院校
清华大学校花
中国传媒大学校花
北京在明律师事务所
中国农业大学动物科技学院
北京在明律师事务所地址电话
中级会计考试时间
哪有健身培训学校
大学生征兵政策
民族类院校
会计案例分析
我要关灯
我要开灯
客户电话
工作时间:8:00-18:00
客服电话
电子邮件
beimuxi@protonmail.com
官方微信
扫码二维码
获取最新动态
返回顶部