炎炎夏日里,除了空调、西瓜,最令人感到清爽的非泳池莫属。除了那丝清凉,泳池还有其特殊的魅力,将全身进入水中的刹那,仿佛与世界隔绝,而独具特色的泳池设计往往还带给人意想之外的精彩。
美丽公园里,广阔海岸边,建筑设计师以一个个独创设计打造出不同风格的滨水泳池空间,实现卓越的设计与休闲娱乐活动的完美交织,从而赠与人们绝佳游泳经历,让游客拥有一次完美的旅行体验。
挪威卑尔根要求建立一个能创造身份的公共空间并发起设计比赛,White Arkitekter的方案获胜,他们将在挪威卑尔根设计一个新的海滩公园和海水浴场,名为True Blue。
True Blue的设计理念基于水,而水是卑尔根最明显的元素,因此设计师创造了一个既美丽又可持续的公园。目的是为各种运动,娱乐和活动创建一个引人入胜且具有包容性的城市空间,同时为环境和气候适应提供创新的解决方案。
海滩公园绵延一公里,设计师将其分为三个区域,根据城市和自然环境的体验,以渐进的方式确立自己的位置。第一个区域,也将是最大的聚会场所,从市中心开始,有城市海滩,漂浮的海水浴场和体育活动场所。进一步,公园转向自然和娱乐,最终将重点放在水下和水中的生活上。建立了固定结构和浮动结构,例如岛屿,桥梁和沐浴码头,使人们能够上下水,并体验水的品质。
另一个重要方面是创造一种在很长一段时间内在社会和生态上都可持续的东西。因此,设计师开发了一种用于供水的自然净化系统,并采取了措施来增加水下环境的生命和生物多样性。
多年来,White Arkitekter设计团队一直关注水和建筑,而True Blue项目的实践,实现了将卓越设计,可持续发展和当地参与的概念融合。
True Blue目标是在2023年之前准备好新的海滩公园和洗浴设施,建成后这里将是卑尔根一个新的聚会场所,也会成为卑尔根100年来最好的公园。
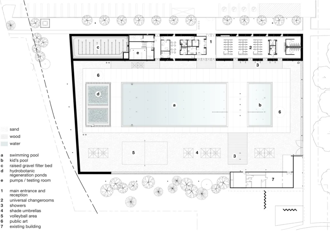
澳洲帕拉马塔市水上休闲中心位于澳大利亚新南威尔士州帕拉马塔公园的梅斯山区,由Grimshaw、Andrew Burges建筑事务所及McGregor Coxall联合设计。
项目于2018年6月启动,预算为7700万澳币。设计团队在将场地的重要意义与相关限制纳入考量的同时,决定打造一处表现景观的公园化运动场馆,与周围的公园环境融为一体,以此区别于传统的水游馆设计,并取代帕拉马塔纪念池。
项目设计对空间及自然光线进行了充分的利用;多个同层入口及通道的设置使居民可以方便地抵达及出入场馆。水游中心设置了一座十泳道的50米户外泳池及一座25米的室内泳池、游泳学习设施、健身中心、更衣室咖啡馆及停车场。
独特的环形设计围绕着室外泳池空间,将围合的概念转化为多功能的空间。“环”是三个主要设计元素的其中之一,还将包括一个立体景观和一个健身馆来作为铁路和公路的缓冲。
帕拉马塔游泳池暂定于2023年夏季开放,届时将为悉尼帕拉马塔居民提供一处全年开放的崭新游憩场所。
波登自然公园泳池是建造在加拿大的第一个无人工化学物质的免费公共室外泳池。该项目以季节性的展廊和供400人使用的景观泳池替代了现存的泳池。
为了创造一个大尺度的,有着高质量水质监控,并实现环境保护和自然过滤的泳池,设计师首先建立了通过石头,砂砾,沙子和植物进行水体净化的泳池技术,在设计更衣室时也采取物质为主导的观念,从而实现技术契合,美学统一的设计。
加拿大对于公共泳池的规定可能是世界上最严格的,所以为了实现该项目的建筑要求,设计师创造性的将该项目分类为“人造水体”,周边建筑作为“可变的人造沙滩”。该泳池包含了一个平衡的生态系统,植被,微型有机物,营养物质可以在砂砾和沙子过滤过程中进行结合,从而产生“有生命力的水体”。
在泳池岸边,水流过沙子和石头侵入的池塘并且滋润了池塘中的水生植物,一个颗粒状的过滤器-PO4吸收单元被紧贴在连接着建筑的石笼墙上。
该建筑包含通用的更衣室,淋浴间,卫生间,办公区以及水体过滤设备。游泳项目包含儿童泳池,深水区,陆上室外淋浴区,沙滩,野餐区以及用于其他与泳池相关的休闲活动的空间。
泳池区域被平面景观所限定,平面景观与表面细部齐平,它们共同与沙滩一起,创造了混凝土泳池外缘与木质甲板地面的无缝接触面。低层直线型建筑的石笼墙用一个盖子状的平屋顶收尾,形成了公园中树木遮盖,其超越并增强了泳池中开放式天景的空间感。
基础的形式和简化的物体使得使用者的体验得以放松,并且丰富了在景观中洗浴的趣味。将反差化的建造元素进行并置排列唤起了与北萨喀彻温河的地质和加拿大北部草原边界的平坦地形进行对比。
波登公园已经在过去的一个世纪中进化成了一个共享室外休闲活动的场所,一个家庭聚会的选择,自从1924年开始就具备了室外洗浴的功能,并且承担运营动物园的作用,偶尔还会举行集市活动。波登公园对于周边社区和北埃德蒙顿和东埃德蒙顿来说蕴含着巨大的市政价值以及社会意义。而波登公园自然泳池在正在发生的公园历史景观变迁中成为了地标元素,是埃德蒙顿城市的典范领袖。
Leça 游泳池位于大西洋和当地海岸线的行车道之间,由阿尔瓦罗·西扎打造。项目设有更衣室、咖啡厅和两个游泳池,一个供成年人使用,另一个则提供给儿童。但这些功能几乎完全存在于视线之外,因为设计师西扎使用下沉的手法将建筑物藏在道路后面,让游泳池和城市基础设施有所隔离。
他考虑到从公路上眺望海景的因素,在规划这一项目时,小心翼翼地保留了大部分的现有岩石,创建的水池延伸到海洋中,与大西洋沿岸的自然水池形成融合。
参观游泳池的游客可以沿着与道路平行的光滑的水泥斜坡进入,然后径直经过走廊来到更衣间和洗浴室,两旁的粗砂水泥墙开始模糊后面的交通和前面的大海,将沿海的风光阻挡在外。
在没有视野的情况下,人们只能听到滚滚海浪的呼啸和来往的汽车引擎声。在建筑内部,人们通过感官体验便可捕捉到道路和海洋之间的过渡,体验着不一样的“海洋之旅”。
参观者离开更衣室进入一系列的平台后回头看,以前看不见的建筑现在出现在街道下面。笔直的墙壁嵌入周围的石头相互支撑,而这幢建筑与上面的道路形成了一道迷人的界线。
把视线转向大海,水体再次成为主要景观,游泳池在建筑物和海洋之间安坐。孩子们的泳池一边被弯曲的混凝土墙挡住,另一边被一座桥和大石头围住。它位于海岸的更里部分,相对非常安全,而成人游泳池似乎直接被设置在大西洋内部。
成人游泳池由低矮的混凝土墙建成,天然岩石沿着泳池的边缘分布。从几乎每个角度看,水池和邻近海洋的水位似乎都是相等的,视觉上把水池和广阔的大西洋连接起来。
这种故意模糊的海洋边缘不仅增强了游泳者面对广阔大西洋的感觉,也模糊了对这个人造边界的理解。Leça 游泳池的设计被认为是建筑中的一个重要时刻,设计师注重将现代设计融入到当地自然文脉中,使两者形成一种和谐的关联。
利马索尔大厦由世界顶级的建筑事务所hamonic + masson&associes设计,他们以捕捉塞浦路斯的自然光彩和美丽为目标,提出了富有远见的住宅塔楼概念。该塔楼可以俯瞰南部沿海城市利马索尔的地中海地平线,为建筑结构系统和新型住宅提出了独特的方案。
大厦的外面被一系列的泳池梯田式包围,里面有19个精装修的公寓,每一户公寓都配有独立的游泳池。利马索尔塔楼的设计策略是创造一个“独立岛屿”,泳池阳台系统整合到外部结构中,从而创造了一种奢华的生活体验,外部与内部相融合。
建筑师的设计灵感来自于城市风光,最能凸显这一灵感的就是每户公寓所配备的花冠型阳台。
在绿化带层面,hamonic + masson&associes引入了一组圆形平台和遮阳篷,呼应了利马索尔塔楼的几何形状,从而使该项目独特的雕塑概念的延续。
建筑立面和完全的透明度使海景最大化、畅通无阻。滑动玻璃门是分隔生活区和每个改造单元阳台的唯一元素,这意味着只需打开窗户即可感受到在户外的感觉。
Allas泳池是一个全年开放的浮动式泳池。即使在北欧冬季,它也提供了一个享受户外沐浴的机会。目的是通过激发人们与海滨的关系,并提供舒适诱人的氛围,提供北欧人美好生活的体验。
第一个阿拉斯海泳池于2016年5月在赫尔辛基的心脏地带竣工。试点阶段结束后,海泳池家族现已在芬兰全国范围内以及在全球范围内扩展。为了给阿拉斯海泳池家庭创建一个新的全球概念,特勒城市于2018年4月组织了一场受邀的建筑竞赛。OOPEAA的提案被选为获奖作品。
OOPEAA提出的Allas泳池家族全球新概念以“新北欧城市”的概念为起点。“新北欧城市”的定义是一种体验感。它融合了北欧人对自然的沉思感,对体育活动的健康取向以及对生活的社会方面的都市倾向。
该概念建立在开放空间和远景之间,具有视野的半开放空间以及通过将不同类型的空间连接在一起的过渡路径相连的封闭空间的无缝运动和过渡的无缝编排之上。它涉及从视图中看到和隐藏的内容的编排,以及从一种类型的空间和活动或存在方式转移到另一种类型的活动的编排。它还涉及人们在空间上以及在心理上如何通过他们的经历移动:从放松水疗中心和桑拿浴室到从事体育和体育活动,再到与他人一起享受生活的社会方面。
借助灵活的建筑系统,建筑概念可扩展并适用于世界上任何站点。目前,建议的尺寸范围从最小的尺寸(室内面积为800平方米)到最大的3500平方米(建在浮动平台上,面积从2000平方米到10000平方米)不等。将来也可能会开发越来越小的应用程序。结合定制工具箱,模块化系统为根据客户需求,季节性变化和当地要求等变量进行轻松定制提供了可能性。
文章素材来源ArchDaily,建道海外设计课,城市窗,archina,oopeaa,搜建筑等平台,由睿途旅创整理编辑,转载请注明出处
图片来源网络,版权归原作者所有
上海睿途文化创意有限公司(注册商标:睿途旅创)是专注于旅游创意研发与实践的专业机构。公司总部设立于上海,在丹麦哥本哈根、新加坡、北京、成都设有分支机构。公司由旅游产品创新研发中心、策划与规划设计中心、创意孵化中心三大板块组成,主营小镇/乡村/景区等各类策划、规划与创意设计、旅游创新产品研发与IP输出。
睿途理念: 小创意改变大旅游
睿途使命: 以优质创意内容革新中国旅游
睿途精神:Innovation consciousness(创新意识) Innovation thinking(创新思维)Innovation ability(创新能力)
版权声明:我们致力于保护作者版权,注重分享,被刊用文章【滨水公园设计案例(这些世界级的滨水泳池空间设计)】因无法核实真实出处,未能及时与作者取得联系,或有版权异议的,请联系管理员,我们会立即处理! 部分文章是来自自研大数据AI进行生成,内容摘自(百度百科,百度知道,头条百科,中国民法典,刑法,牛津词典,新华词典,汉语词典,国家院校,科普平台)等数据,内容仅供学习参考,不准确地方联系删除处理!;
工作时间:8:00-18:00
客服电话
电子邮件
beimuxi@protonmail.com
扫码二维码
获取最新动态
