在空间设计中,从不缺乏创意,但若要在凸显出个性的情况下,让空间满足实用,并符合自己的生活方式,却并不多见。或者说就没有多少人,会采用大胆的方式,来设计自己的新家。毕竟生活本身就是很简单的。
不过下面这套案例,在空间布局改造这块,却着实让人大开眼界。没想到一个如此常见的户型,通过逆向思维来改造后,不仅十分符合屋主的生活方式,还让整个公共区的面积有了大户型的体验感,真的太巧妙了。
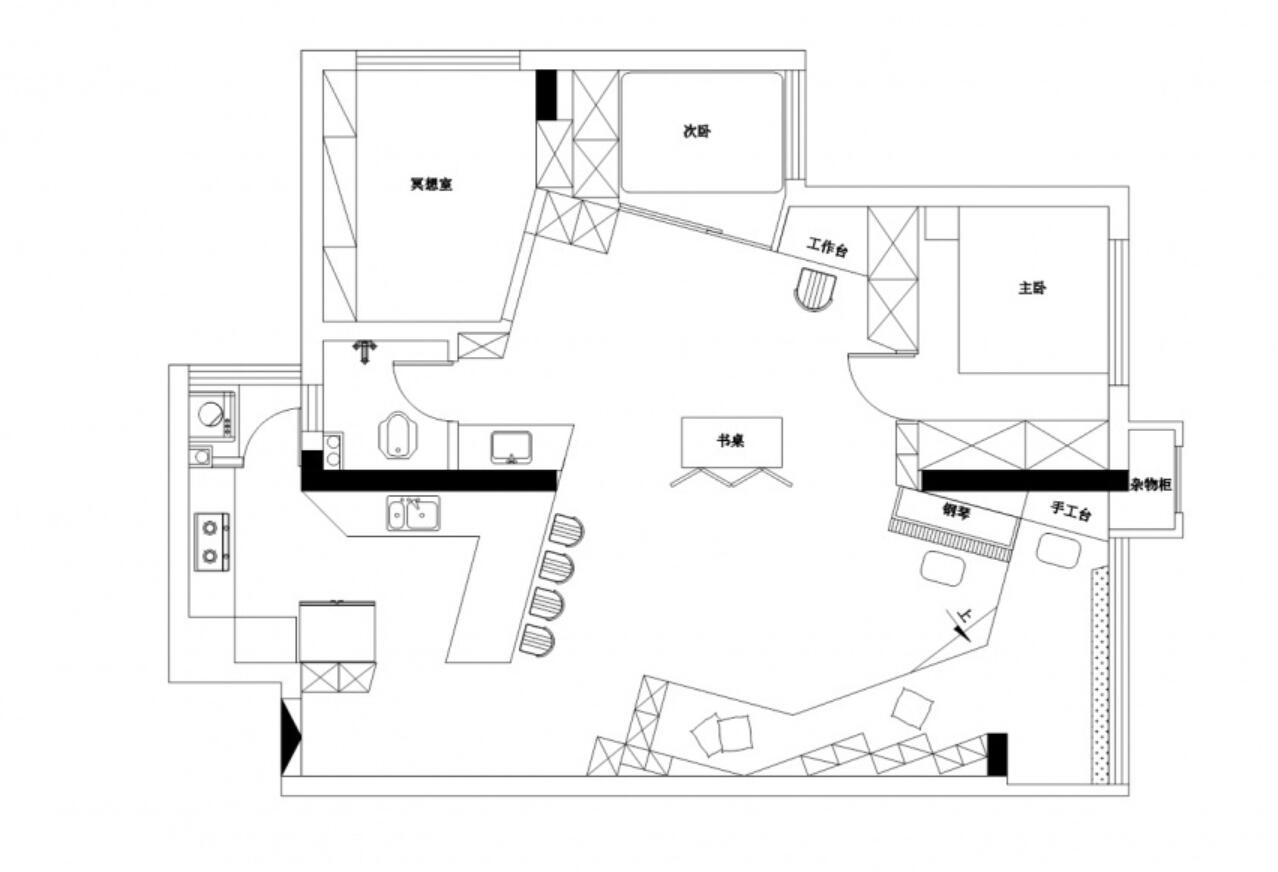
本案坐标长沙,实用面积70㎡,典型的紧凑型小三室格局。屋主是一位年轻人,目前独居,喜欢音乐、电影、传统文化、手工、书法等等。因此,也希望新家在符合自己的需求下,能体现出年轻人该有的个性。
而原户型结构也比较常见,相信很多人都不陌生。虽说整体较为工整,但对于追求个性的屋主来说,显然是不符合的。所以,整个空间格局,也进行了比较大胆的调整。
结合屋主的需求,空间布局如下。
1、缩小三个房间的使用面积,并以围合式功能区来定位客厅。
2、餐厨区采用一体化设计,并与客厅形成围合,让空间面积可以无限拓展。
3、卫生间做干湿分离,让日常使用更加便捷。
4、北面小房间以冥想室来定位,让屋主有一个放空、安静的精神领地。
斑驳的水泥、温润的木质、以及少量的绿植元素,一进门就为空间奠定了复古文艺的基调。玄关端景墙,是利用沙发书架侧面空间来设计的,再搭配上一盆绿植,立马就营造出了一抹自然气息。而定制的牌匾,则是屋主为自己家起的名字,超有文化韵味。
入户鞋柜是利用厨房墙体空间来设计的,满足了基本的生活需求。而当餐厅和厨房采用一体化设计后,也与客厅做到了完全贯通。
放弃常规的餐桌,并利用橱柜转角的空间,设计一组超大的中岛台,不仅仅满足了日常的用餐需求,还兼具了西厨操作台的功能。同时,就算有三两好友来小聚,也依然能满足使用。
灶台设计十分细节,分别在燃气灶两边各安装上一块钢化玻璃,既可以在烹饪时,避免油渍乱溅,也有助于日常的排烟效果。在这里也建议开放式厨房的家庭来借鉴,实用性非常强。而厨房外面的小阳台,则还是以家政区来定位的。
全屋最大的亮点,就是整个客厅的布局及设计了。相较于传统的客厅,不仅对空间结构进行了重组,还融合了多种功能性。比如音乐、电影、休闲、阅读等,都可以在这里实现。
放弃常规的沙发,并采用定制的方式来处理,既在储物能力上有了质的提高,也能满足多人小聚的需求。而大量开放式书架设计,也解决了屋主的藏书需求,并让整个空间都充满了书香气息。
客厅与学习区之间采用屏风隔开,既在视觉上做到了隔而不断,又让空间功能实现了互不打扰。而大量的书架,以及墙体采用异形的结构来处理,也让整个公共区呈现出了一种围合式结构,从而给人一种安全、温暖的感受。
书桌选择也十分细节,利用四张三角形的书桌来组合,在凸显个性的同时,也与整个空间做到了对称、统一。
展开藏在顶部的150寸投影幕布,立马就让客厅转换成了观影区。顶面、墙面、以及落地式的环绕音箱配置,视听享受丝毫不逊于电视院。
当沙发选择定制之后,还增加了地台设计,并延伸到了外面阳台。这样一来强化了空间层次,二来弱化了空间边界。尤其是将阳台门洞采用45度的造型来设计后,更是让空间有了自然的延伸性。
花池、乐器、书籍、阳光。我想这个小角落,应该也是所有文艺青年都梦想的空间了。不管是阅读,还是在午后品茗,都极为地惬意、慵懒。
冥想室的布局十分简单,并且也没有做特定的功能限制,以便让空间拥有更多的变化。比如整面墙的书架,就是一个十分强大的收纳区。再比如暗藏的墨菲床的设计,就兼具了客房的功能。
主卧虽说在空间改造上,做了一定的面积缩小处理,但作为家里的主要睡眠区,却也做到了沉稳、安宁。尤其是一床一柜的布局,更是彰显出了不俗的品味。
次卧与主卧一样,都是采用一床一柜的布局。不过考虑到该房间目前用不到,所以和冥想室一样,都选择了玻璃移门隔断,从而让空间更加的通透。
整个案例看下来,真的是让人大开眼界。虽说看起来有些不太靠谱,但对于独居的屋主来说,却是十分符合生活方式的,并且体现了他的个性。不知道你们对此会怎么看呢?
图源:廖欢
版权声明:我们致力于保护作者版权,注重分享,被刊用文章【70平三室一厅装修案例(70)】因无法核实真实出处,未能及时与作者取得联系,或有版权异议的,请联系管理员,我们会立即处理! 部分文章是来自自研大数据AI进行生成,内容摘自(百度百科,百度知道,头条百科,中国民法典,刑法,牛津词典,新华词典,汉语词典,国家院校,科普平台)等数据,内容仅供学习参考,不准确地方联系删除处理!;
工作时间:8:00-18:00
客服电话
电子邮件
beimuxi@protonmail.com
扫码二维码
获取最新动态
