最近深圳规划与自然局发布了深圳地铁四期的命名规划,其中地铁14号线比较引人瞩目,毕竟这条跟11号线一样时速120Km/h的高速地铁,承载了深圳东部打工人通勤的生命线,那么这条线路沿线各个站点1000米内到底连接了哪些资源?
我分析的逻辑是14号线各个站点1000米内连接的工作机会和产业聚集,公共配套,商业,学校,以及政府顶层设计层面规划的重点开发片区;今天这篇文章将为你详细盘点和分析
岗厦北枢纽是既有2号线,10号线、11号线二期、和14号线的四线综合换乘枢纽,岗厦北枢纽将是深圳快速城市轨道交通成网后的第一个枢纽。岗厦北枢纽建成后,预计客流仅次于福田枢纽,高于车公庙枢纽。未来还同步进行地下空间开发,向西连通市民中心、向南连通连城新天地,将打造又一网红圣地!
11号线二期(在建)从福田站向东延伸,其中东延第一站就是岗厦北站,预计2025年建成通车。这个14和11号线这2条深圳高速地铁通过岗厦北枢纽的换乘将毫无疑问将成为东西走向的交通大动脉!不过遗憾的是11号线二期要到2025才建好,这点比较遗憾
深圳的就业中心集中在宝安中心区,南山高新园,车公庙,福田CBD,华强北,罗湖金三角,华为富士康这些区域;综合分析在岗厦北站
通过11号线,2站可以抵达车公庙就业中心;通过未来11号线二期,4站抵达后海,5站抵达前海湾,再转5号线2个站抵达宝安中心通过11号线和1号线,9站抵达高新园通过2号线,1站到市民中心,再转4号线1站到达会展中心抵达福田CBD;通过2号线,1站抵达华强北就业中心;3站抵达大剧院,可以抵达罗湖金三角如果按照坪山中心区到岗厦北的40分钟通勤时间来算,福田车公庙,福田CBD,华强北,罗湖金三角都可以控制在1个小时以内,但是抵达南山科技园和宝安中心,至少需要1个小时30分钟了
黄木岗枢纽地处深圳福田区中心区东北部,位于笋岗西路、泥岗西路、华富路、华强北路叉路口,总建筑面积约24.42万㎡。建成后,可实现7号线、14号线(在建)及24号线(规划)三线换乘。预计2022年建成。
黄木岗枢纽规划以“轨道交通建设”为契机,将把片区建设成为集体育、医疗、教育、商业办公、居住于一体的综合型中心区,打造现代化国际化的市级体育文化核心区。
建成后的效果图
黄木岗站能够连接最重要的资源是市二医院和深圳新体育馆,以及站点附近的商业,只能通过7号线,2站转到华强北就业集中区
产业发展是房产价值的基础,罗湖未来哪个区域产业基础最雄厚?毫无疑问是笋岗清水河片区。而罗湖北站将坐落于此!深汕高铁、深汕城际在这里汇集,地铁14、17、25三条轨道线路都将在清水河交汇,无缝换乘,打造新的站城枢纽!
未来罗湖全力构建打造 “一主两区三带” 新格局:
1、一主:深南总部经济主廊道
2、两区:国际消费服务核心区、文化生态休闲区
3、三带:红岭新兴金融产业带、大梧桐新兴产业带、深港口岸经济带
而罗湖未来的科技产业主要聚集在清水河片区
14号线最重要的就是沿线能够提供的就业机会,产业空间连接的越多,价值越大,而罗湖北站连接的笋岗清水河片区的增量产业面积二者相加达到462万平米,占据罗湖未来990万产业空间的近乎半壁江山!
14号线罗湖北站是沿线里面能够提供最大的产业增量集中汇集区,整体开发完毕至少10年,需要漫长的等待
布吉新城规划图
南门墩旧改效果图
根据卫星图,目前南门墩旧改土地基本已经整平,根据南门墩旧改公示的信息,新增商业,办公及酒店的建面在14万平米
布吉文体中心
附近将新建布吉文体中心,目前进展缓慢;
布吉站附近有深圳最牛逼的学校百合外国语学校,转5号线一站到百鸽笼有布吉最大的商圈华润万象汇
布吉站附近1000米内能够带来的无论是就业就会,商业,医院等设施还是偏弱的,更多的还是承担一个中转站的功能,布吉的问题就是老生常谈"旧改难",整体的价值体现需要极长时间的等待,但愿新的旧改法案能够加快旧改的进度!
从生活配套上来看,该片区历经10余年耕耘,怡瑞山居、龙园意境、慢城、来座山,鸿荣源尚峰,宇宏健康花城等十几个高端住宅日渐成熟,多个项目都定位为豪宅项目,是一个交通便捷、整体配套成熟的区域,是布吉难得的宜居片区!
石芽岭站附近的住宅用地基本开发得差不多了,后续增量基本以工业用地和新型产业用地为主,目前已经动工的项目:
1,富通海智科技园
富通海智科技园区占地约3.7万m²,总建面积约22万m²,项目由6栋组成,其中:1栋为展示中心、2栋为居住空间、3-6栋为办公空间;办公空间面积约为980-1980m/层,横向8.4m,纵向7.5m柱间距,全明全通全连,可自由分隔,高效利用大尺度空间。
2,康利工业园旧改
拟拆除重建用地面积4.9万㎡,更新单元面积近5万㎡。该项目未来将打造成为全国首个“物流+金融+电商+创意” 的综合性现代创新产业综合体。
产业用房174750㎡(含创新型产业用房8740㎡);产业配套用房68220㎡(含小型商业商业服务设施25000㎡,配套宿舍43220㎡);公共配套设施6670㎡。值得注意的是,项目裙楼高度不得大于24米,塔楼高度不得大于280米,修改之后的康利工业园项目将一跃成为南湾片区新地标。
石芽岭站良好的居住环境,是布吉为数不多的宜居片区,未来通勤到南山科技园也能在1个小时范围内,这里面的优质住宅价值将得到大大提升,唯一的遗憾是没有优秀的学校和未来发展概念!
六约北站是后面新增的站点,站点附近没有爆出什么大的旧改和产业落地项目,规划的都是学校和医院等公共配套用地,价值不大,本身的目的是为了方便周边的振业城,中海大山地等楼盘的居民出行,不过从卫星图来看,周边确实存在比较大的产业用地空间
四联排榜村旧改
四联站排榜村旧改,建设规模将达到惊人的200万平方米,57栋超高建筑,集合了住宅,产业,学校,医院,未来将提供大量的优质住宅,将形成一个庞大的产城融合区域,有点类似龙华的壹城中心了!
目前坳背站附近有保安社区坳背片区城市更新单元,拟拆除重建用地面积约13万平
坳背旧改规划图
未来坳背站附近都是低密度的厂房和农民房,旧改后能够提供大量的住宅和产业空间,规划的方案还是很高大上的,而且未来21号线也将在此汇集
大运枢纽片区的住宅主要是颐安都会中央,总共分七期开发,目前已经开发到第五期,剩下的写字楼商业中心待建
从法定图则来看,大运站周边主要配套相当之丰富,有颐安都会中央品质住宅,有枢纽上盖商业写字楼,还有大运软件小镇改造提供的创新研发空间,还有几所学校,堪称完美
大运软件小镇改造
目前14号线在修了2年后突然新增了肿瘤医院一站,现改名为嶂背站,很蹊跷,为了一个肿瘤医院加站,似乎说不通,更大的原因主要还是因为大运新城扩容,嶂背被纳入其中,目前已经有嶂背整备片区北至沈海高速,南至沙荷路,西部紧邻龙岗河,东部紧邻宝荷路。在最新的公开信息披露中,嶂背的定义是“未来或将承载大运新城功能外溢成为深圳国际大学园产学研项目落地区域,担起创新产业策源地的作用”。
后续应该有一些比较大的旧改项目,例如华侨城嶂背城市更新项目,该项目借助片区发展新契机,抢抓数字创意产业发展机遇,发挥华侨城的产业导入能力和韦玥创意、百旺达实业的属地资源优势,将其打造成龙岗数字创意产业孵化高地和“创想未来”的新型产业小镇。
嶂背郊野公园设计图
另外如意路南延接入东部过境高速也能够大大的增强嶂背地区和龙岗中心城的联系
总的来说,嶂背站附近目前还处于土地整备阶段,后续肯定会有不少动作和大的项目
南约站附近法定图则
京基御景荟都
京基御景荟都项目定位为集中商业与街区型配套商业相结合。据官方透露,由于考虑周边客群特征,未来将以餐饮作为主力业态,休闲服务业态作为补充业态。
项目总规划将建成建筑面积466545㎡,商业73348㎡,办公233797㎡,酒店11000㎡,商务公寓127843㎡,人才公寓13347㎡,地下不计容积商业33200㎡。还将会建成两座高200米的区域性地标建筑。
南约京基炳坑村城市更新项目
总的来说,南约站附近未来能够提供大量的住宅,包括京基御景荟都,中海积谷田项目,碧桂园观麓花园,京基炳坑村旧改,洋桥和汉田旧改;又有京基KKmall商业,加上地铁14号线和东部过境出口,交通方便,是一个很宜居宜业的地方!
龙岗智慧家园
龙岗智慧家园主要以5G通信、IC芯片、新能源、新材料等战略性新兴产业, 打造成集孵化器、先进制造、加速器及总部基地为一体的智能制造全生命周期科技园区,致力打造成为东部产城融合示范区,目标是打造成为百亿园区。
截止目前,现已入驻企业近50家。其中,引进了院士团队1个(曹镛院士、柔性OLED照明项目)、“孔雀团队”1个(华科创智)、公共技术服务平台 1个(集成电路测试验证工程技术中心及集成电路设计龙岗服务平台)、金融机构1个(光大银行一级支行)、国高企业10余家。
宝龙文体中心
宝龙站附近未来还有大量的工业用地,而且是空地,开发速度快,宝龙科技城是除坂田外GDP排名龙岗街道里面第二,未来这里的产业会非常的丰富
坪山世茂广场
坪山世茂广场,将建设坪山300米第一高楼,同时附带4万平面商业
华侨城坪山城市综合体,主塔楼设计高度为249米,副塔楼为87米。项目业态涵盖高端商务办公,五星级酒店、集中式商业、文化设施,同时,项目与建设中的地铁14号线沙湖站无缝衔接,该项目预计在2025年全部建成
泰禾广场,因为泰禾债务问题目前二期烂尾中,何时复工未知
百佳华沙湖12号地块旧改,作为沙湖整村统筹的首个项目,目前已动工
华润万樾府项目,华润在坪山的三个项目里面,位置最好的一个,目前都很难买到
信达泰禾金尊府,2021现房发售
君胜熙玥湾作为君胜集团进军坪山的首个项目,择址深圳市东进战略核心重地——坪山新区中心金碧路与坪联路交汇处,毗邻坪山高级中学,总占地30938.18平方米,总建筑面积约18万平方米,容积率为5.37,计容积率面积130750平方米,由六栋塔楼围合而成,项目总户数约1300户,停车位充足。
花样年旭辉好时光,百万超体全龄生活城邦,匠心规划一轴、七街、三桥、四院、九广场,打造集教育、商务、商业、住宅等一体的全龄生活城邦。整个项目建设用地7.12万平方米,计容面积39.25万平方米,项目还自带约 7万㎡的集中商业。
坪山围建成效果图
坪山围旧改
坪山围旧改效果图
坪山围项目定位为“东部中心都市标杆,城站一体宜居典范”,拟打造为集商业、办公、酒店、居住为一体的大型城市综合体。
恒大城项目
深城投AIO(飞东旧改一期)
正山甲旧改
目前财富城一期,二期深城投中心公馆已经交楼入住,财富城二期已经土地整平准备动工,三期华侨城和城花园已经在打桩挖地基中
财富城二期
华侨城和城里花园华侨城和城花园
和城里项目作为华侨城华南集团在坪山区域的开山之作
正奇未来城
项目将主要为高端产业、创新产业、总部基地等提供空间载体,建设内容包括中小企业总部区、创新企业孵化器、中小企业加速器、公共技术中心、创投与服务机构区、综合商务配套区。项目建成后将成为坪山中心区总部办公的地标性建筑群
坪山展览馆旧改(华润万象城)
华润重仓坪山大事记:
2019年,华润置地与坪山签订战略合作协议,重点战略布局坪山,为坪山代建众多市政公园学校及医疗设施等城市生活配套,代运营坪山文化聚落北区五馆,助力深圳东部文化腾飞。
2020年,华润置地首入坪山,携手五矿地产和招商蛇口,以坪山大道为轴线,占位城市未来主动脉,匠著【润樾山】、【万樾府】、【玺悦台】,以品质人居,开启坪山美好生活。
现今,华润置地城市更新择址坪山区核心地段,通过旧城改造、土地整备、片区统筹等城市更新模式,助推坪山再上新台阶。将坪山区域打造成为周边商业规划完善,教育资源充沛,居氛围浓厚的未来价值高地。
坪山中心站所在的中心公园东片区位居坪山区地理中心是坪山中心区与高新区双区叠加之地,未来坪山产城创新融合的汇聚片区,承载着打造深圳东部乃至粤港澳大湾区东部地区产城融合的城市新中心的使命,定位为深圳东部创智总部与综合服务基地;持续激发创新活力的产业升级标杆;宜业宜居宜游的产城融合科创街区。
2020年,由蕾奥编制的《坪山区坑梓街道新兴街片区城市更新单元专项规划》经坪山区2020年第5次城市更新业务会审批通过。
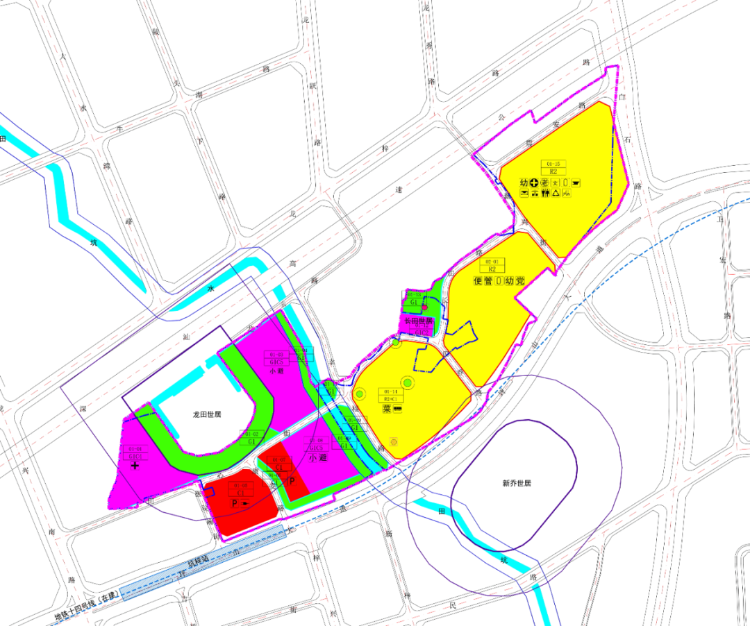
新兴街片区旧改(龙田承翰旧改)项目位于坪山区坑梓街道,由规划六部负责设计工作,于2014年5月列入《2014年深圳市城市更新单元计划第一批计划》,更新方向为居住、商业等功能,拆除范围用地面积为159082平方米,规划开发建设用地面积85942平方米,规划容积为570000平方米,规划容积率6.6。
昂鹅车辆段地铁上盖项目
坪山区地铁14号线昂鹅车辆段地铁上盖项目位于深圳市坪山区“坑梓龙田-砂砾地区”范围内,属深圳市新能源汽车基地“一轴双中心六片区”中的“制造研发核心”。基地南侧正在建设地铁14号线终点站沙田站,东侧规划了地铁19号线站点。基地距14号线沙田站约600米,西北角直接贴临深惠边界。地铁19号线站点紧邻上盖边界。
沙田村利益统筹项目是坪山高新北片区较大面积的产业空间土地整备项目,目前已经开始了整备工作。前期目标整备范围36.75万㎡,后期将以利益统筹的方式将沙田村纳入整体规划当中。其中,重点打造的昂鹅产业城(昂鹅车辆段上盖)也包括在土地整备项目的范围内。其中商住用地12.04万㎡,教育设施用地4.01万㎡。
沙田片区主要以国家新能源汽车产业为主导,住宅很少
可以看到14号线新增的住宅空间主要集中在四联站,大运站,南约站,牛角龙站,坪山围站,坪山广场站;
而产业空间则主要是岗厦北站和清水河站,大运站,牛角龙站的坪山CBD和坪山广场站,以及沙田新能源汽车产业基地
途径福田CBD,清水河,大运新城,坪山中心区4个市级重点开发片区
目前通勤福田和罗湖的就业聚集区1个小时是没有问题的,到南山科技园和宝安中心则需要1小时30分钟左右,如果要保持1小时的通勤还需要等11号线二期以及深惠城际和深大城际开通后才行
这真的是深圳东部的黄金线路!
(全文完)
版权声明:我们致力于保护作者版权,注重分享,被刊用文章【石芽岭学校排名(深圳东部能否被激活)】因无法核实真实出处,未能及时与作者取得联系,或有版权异议的,请联系管理员,我们会立即处理! 部分文章是来自自研大数据AI进行生成,内容摘自(百度百科,百度知道,头条百科,中国民法典,刑法,牛津词典,新华词典,汉语词典,国家院校,科普平台)等数据,内容仅供学习参考,不准确地方联系删除处理!;
工作时间:8:00-18:00
客服电话
电子邮件
beimuxi@protonmail.com
扫码二维码
获取最新动态
